EasyManua.ls Logo

GM V2H Bundle - Communication Wire Connection

Default Icon
96 pages
Print Icon
To Next Page IconTo Next Page
To Next Page IconTo Next Page
To Previous Page IconTo Previous Page
To Previous Page IconTo Previous Page
Loading...
GM Energy V2H Bundle Installation Manual 44
Figure 31: Home Hub grid power connections
Note: Torque circuit breaker terminals to values specified on the breakers. Terminals other than breaker terminals &
EVL1/EVL2 are suitable for 60/75ºC AL/CU wire. Breaker terminals are suitable for wire as marked. Communication
wires may not be tied to power wires.
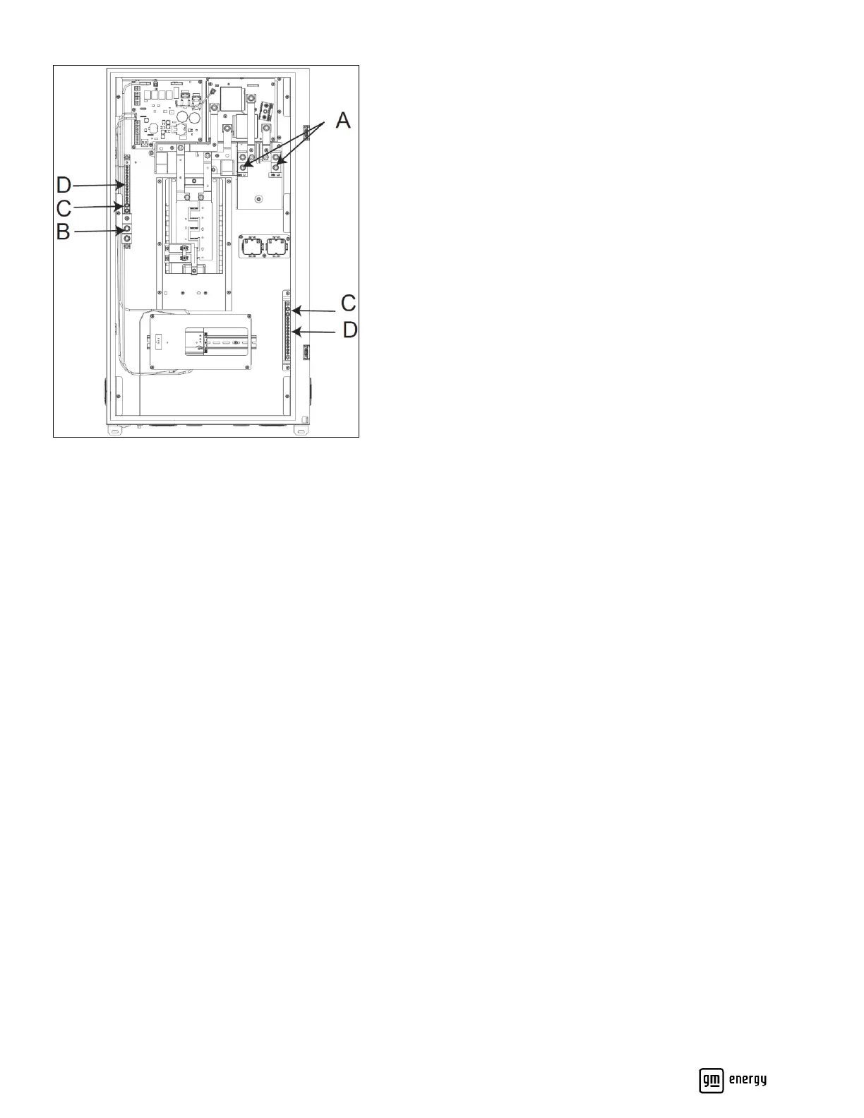
Communication Wire Connection
Refer to Figure 29 callout 1 and Table 11:
1. For RS-485 A1, B1, A2, and B2, use provided 14 AWG wire and strip 3/8″ from the wire ends.
2. For 12V and GND, use provided 14 AWG and strip 3/8″ from the wire ends.

Table of Contents

Other manuals for GM V2H Bundle

Related product manuals