EasyManua.ls Logo

HDG Compact 25 - Dimensions on Back Side HDG Compact 45;50;65;80

Default Icon
188 pages
Print Icon
To Next Page IconTo Next Page
To Next Page IconTo Next Page
To Previous Page IconTo Previous Page
To Previous Page IconTo Previous Page
Loading...
4 Planning and installation – Connections
52
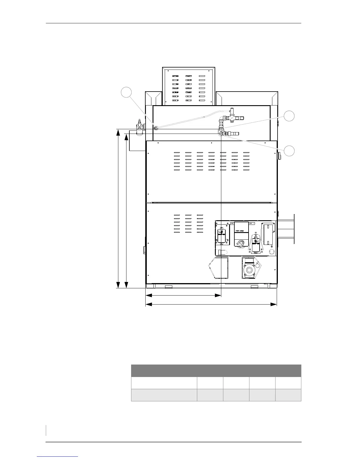
DIMENSIONS ON BACK SIDE HDG COMPACT 45/50/65/80
1 Connection of immersion sleeve for thermal safety device (DN 15
female)
2 Safety heat exchanger inlet (DN 15 outside thread)
3 Safety heat exchanger outlet (DN 15 outside thread)
Figure 4/11 - HDG Compact 45/50/65/80, back side
A
C
D
1
3
2
B
Model A B C D
HDG Compact 45/50/65 1380 1340 655 1145
HDG Compact 80 1390 1350 850 1450
Table 4/6 - Dimensions on back side, HDG
Compact 45/50/65/80 (mm)

Table of Contents

Other manuals for HDG Compact 25