EasyManua.ls Logo

Husmann SPB - Page 96

Default Icon
113 pages
Print Icon
To Next Page IconTo Next Page
To Next Page IconTo Next Page
To Previous Page IconTo Previous Page
To Previous Page IconTo Previous Page
Loading...
93
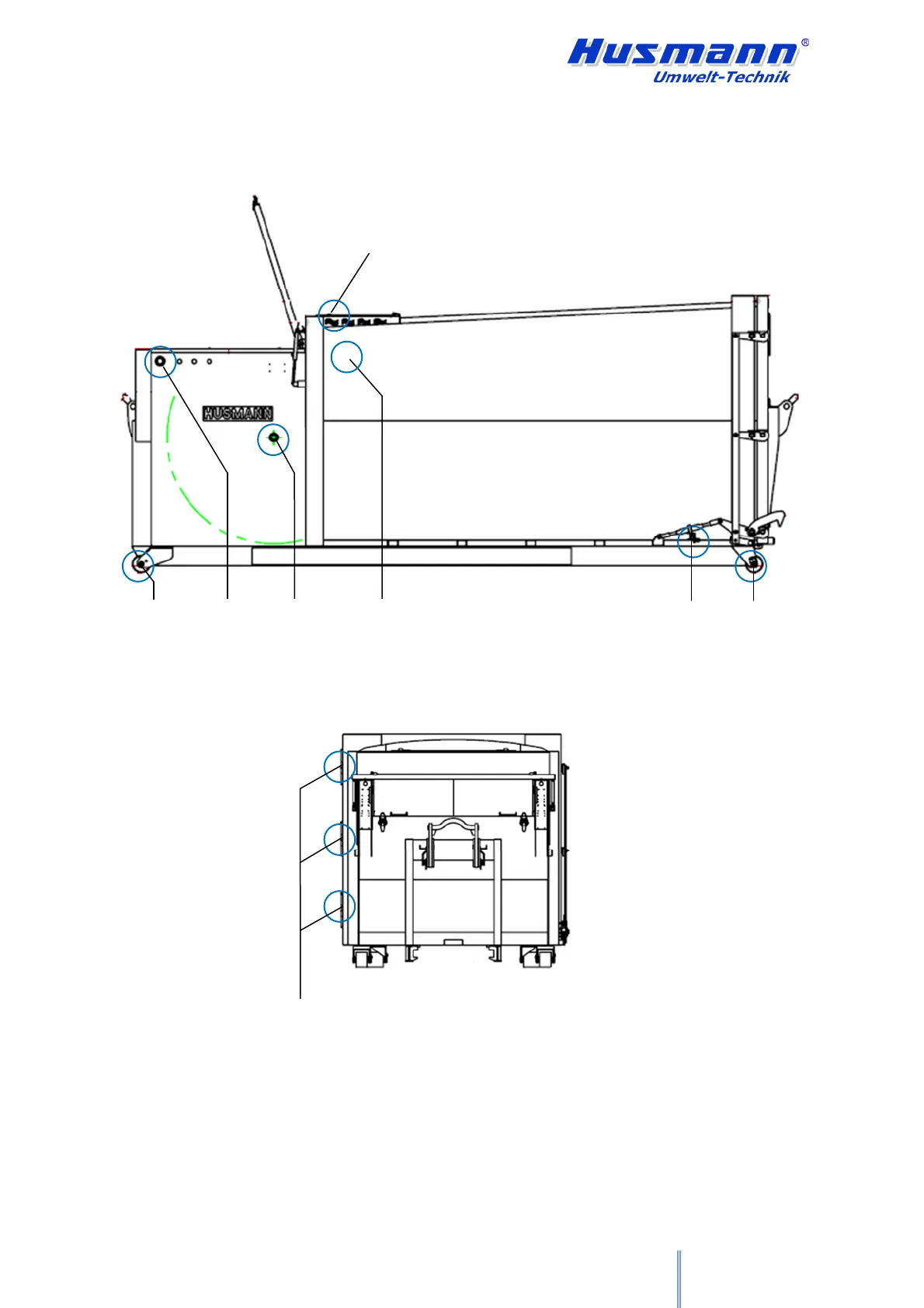
Lubrication chart for portable compactor with pendulum ram
02
07
03
04
05
06
01
08

Table of Contents