EasyManua.ls Logo

Hussmann Super Plus - Page 57

Hussmann Super Plus
147 pages
Print Icon
To Next Page IconTo Next Page
To Next Page IconTo Next Page
To Previous Page IconTo Previous Page
To Previous Page IconTo Previous Page
Loading...
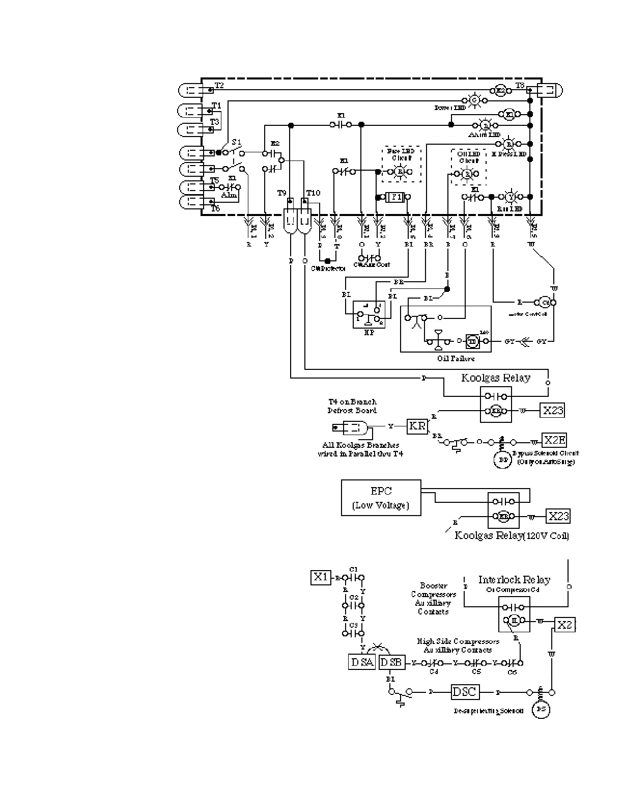
Koolgas Relay
To assure proper operation of
the rack, it is required that a
compressor be running when a
branch goes into Koolgas
Defrost. The Koolgas Relay
contacts are wired between T 9
and T10 of the #1 Compressor
Board only. When any Koolgas
Branch Board calls for defrost,
the Koolgas contacts close
forcing #1 Compressor run.
Koolgas Relay with EPC
With an EPC Control, the Koolgas acts as
an interface between the 120V C o n t r o l
Panel and the low Voltage EPC circuit
boards.
DO NOT CROSS VOLTAGES.
Interlock Relay
On Compound Systems, at least one high
side compressor must be running when a
booster compressor comes on. The first
high side compressor is designated for this
function. If compounding is between racks
this will be the #1 Compressor. On a com-
pound rack the first high side compressor
will be forced on if no others are running.
The schematic shows a six compressor
rack with the #4 Compressor being the
first high side unit.
HUSSMANN CORPORATION • BRIDGETON, MO 63044-2483 • Printed in USA
Revised August 1, 1996 P/N 340272A
4 - 17

Table of Contents

Related product manuals