EasyManua.ls Logo

Hussmann Super Plus - Off Cycle Defrost

Hussmann Super Plus
147 pages
Print Icon
To Next Page IconTo Next Page
To Next Page IconTo Next Page
To Previous Page IconTo Previous Page
To Previous Page IconTo Previous Page
Loading...
HUSSMANN CORPORATION • BRIDGETON, MO 63044-2483 • Printed in USA
Revised August 1, 1996 P/N 340272A
4 - 31
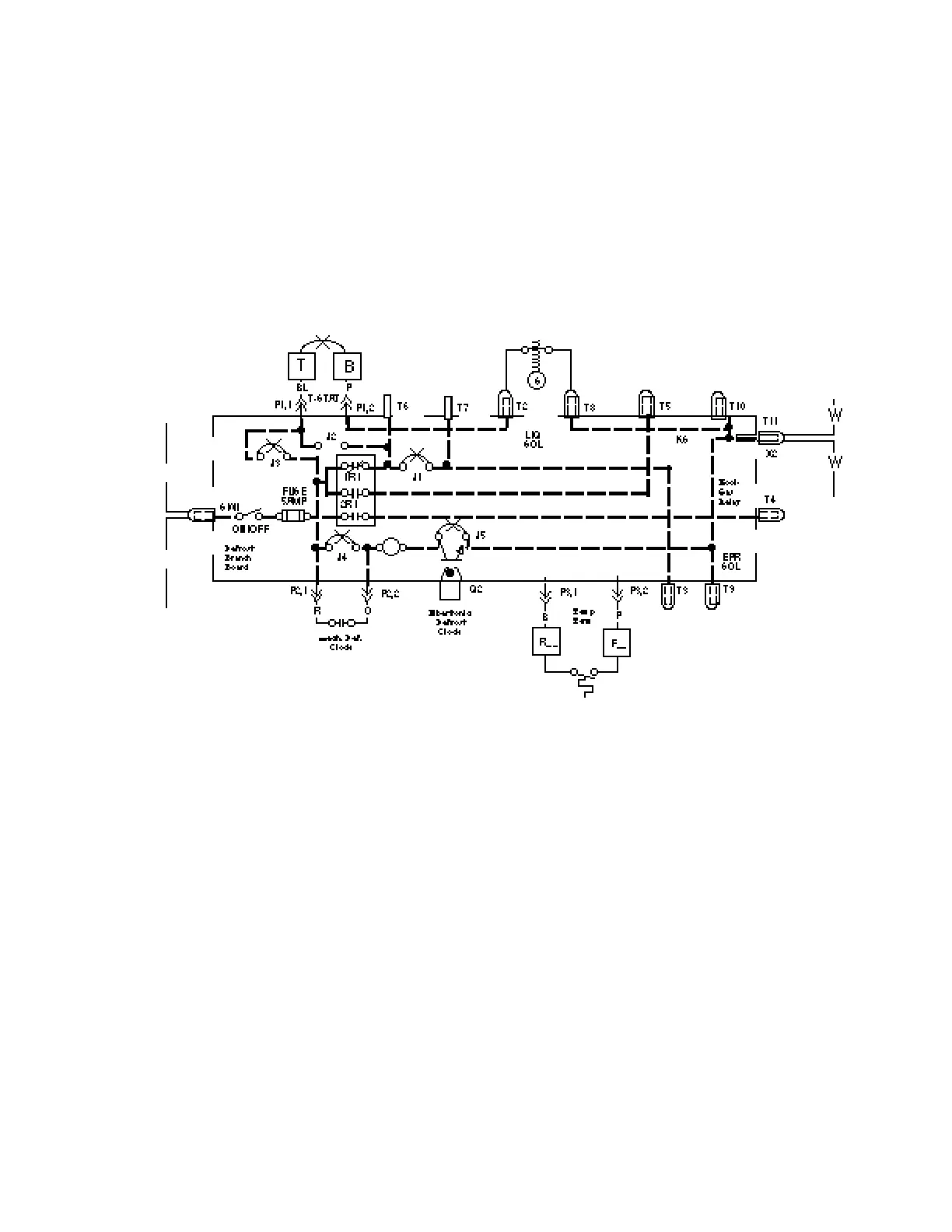
Off Cycle Defrost
When defrost clock energizes Defrost Relay Coil R1
Contact 1R1 will turn “OFF” Liquid Line Solenoid Valve (S).

Table of Contents

Related product manuals