EasyManua.ls Logo

Hussmann Super Plus - Circuits Parallel to the Compressor; Motor Contactor Coil

Hussmann Super Plus
147 pages
Print Icon
To Next Page IconTo Next Page
To Next Page IconTo Next Page
To Previous Page IconTo Previous Page
To Previous Page IconTo Previous Page
Loading...
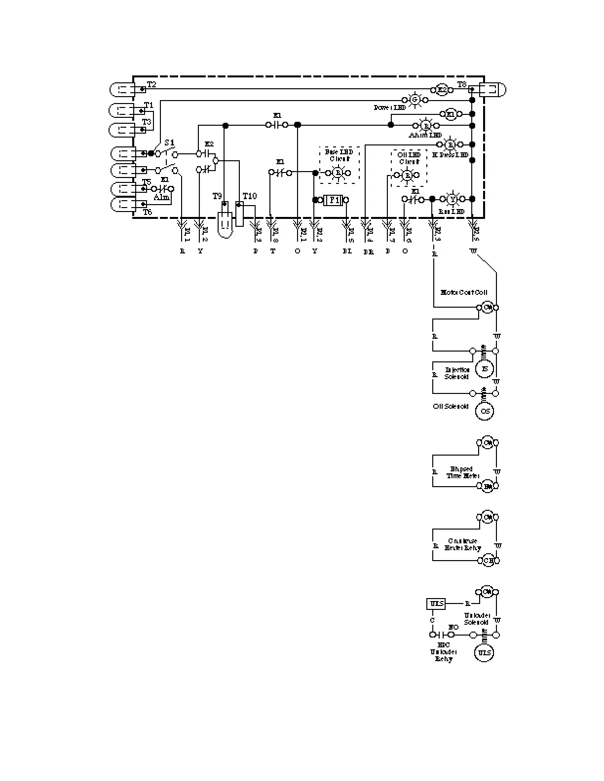
Internally Compounded
Carlyle Compressors
Both the Injection Solenoid and the Oil
Solenoid are wired parallel to the Compressor
Motor Contactor Coil.
Elapsed Time Meter
This meter is wired to run when the Motor
Contactor Coil is energized.
Crankcase Heater
The normally closed contacts of the
Crankcase Heater Relay open when the
Compressor Motor Contactor Coil is ener-
gized, so the heater is off while the compres-
sor is running.
Unloader
The Unloader circuit is powered only during
compressor run. The Unloader is controlled
by the normally open contacts of the EPC
Unloader Board.
HUSSMANN CORPORATION • BRIDGETON, MO 63044-2483 • Printed in USA
Revised August 1, 1996 P/N 340272A
4 - 21
Figure 4-16
Circuits Parallel to the
Compressor Motor Contactor Coil

Table of Contents

Related product manuals