EasyManua.ls Logo

Hussmann Super Plus - Suction Stop Koolgas Defrost

Hussmann Super Plus
147 pages
Print Icon
To Next Page IconTo Next Page
To Next Page IconTo Next Page
To Previous Page IconTo Previous Page
To Previous Page IconTo Previous Page
Loading...
HUSSMANN CORPORATION • BRIDGETON, MO 63044-2483 • Printed in USA
Revised August 1, 1996 P/N 340272A
4 - 29
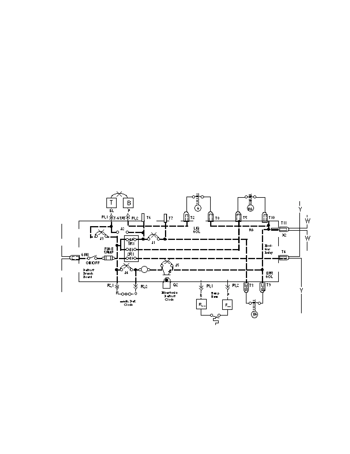
Suction Stop Koolgas Defrost
When the defrost clock energizes Defrost Relay Coil R1
Contact 1R1 will turn “OFF” the EPR Solenoid (ES)
Contacts 2R1 will turn “ON” the Koolgas Solenoid (KS)
and Koolgas Relay (KR)
power to T4
thru Yellow wire to KR terminal
thru Red wire to Koolgas Relay (KR)
and thru Brown wire to Bypass Circuit.

Table of Contents

Related product manuals