EasyManua.ls Logo

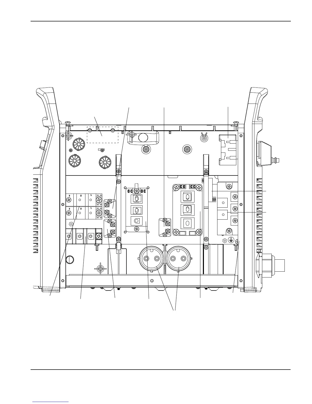
Hypertherm Powermax 85 - 200-600 V CSA Power Supply Overview (Power Board Removed)

Hypertherm Powermax 85
246 pages
Print Icon
To Next Page IconTo Next Page
To Next Page IconTo Next Page
To Previous Page IconTo Previous Page
To Previous Page IconTo Previous Page
Loading...
TROUBLESHOOTING AND SYSTEM TESTS
powermax
65/85
Service Manual 5-19
200-600V CSA power supply overview (power board removed)
Power switch (S1)
Output snubber
resistor
Optional serial
board
PFC snubber
resistor
Inverter
snubber
resistor
Pilot arc IGBT
Output
diode
bridge
Input
diode
bridge
Snubber
resistor
Inverter IGBT
module
Bulk capacitors
PFC IGBT
Ground

Table of Contents

Other manuals for Hypertherm Powermax 85

Related product manuals