EasyManua.ls Logo

Intel Xeon Phi Processor x200 - Processor with Fabric PMD (Sheet 1 of 2)

Intel Xeon Phi Processor x200
114 pages
Print Icon
To Next Page IconTo Next Page
To Next Page IconTo Next Page
To Previous Page IconTo Previous Page
To Previous Page IconTo Previous Page
Loading...
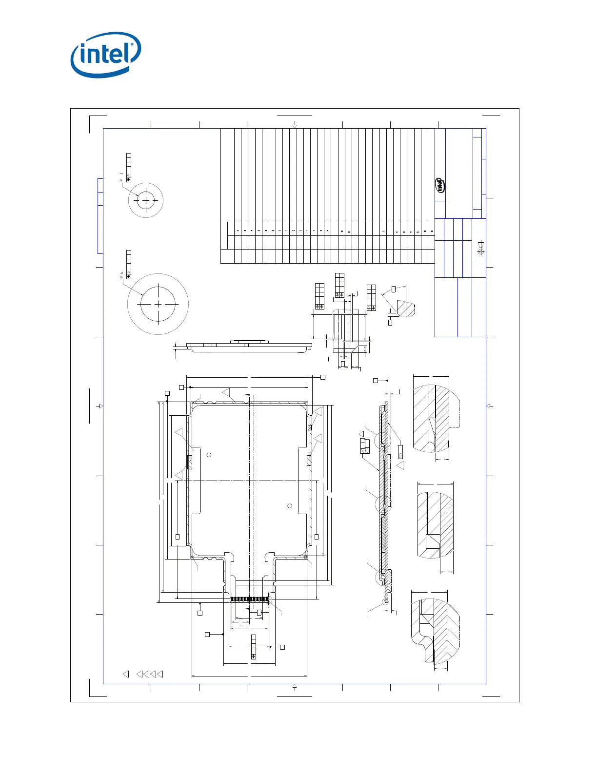
Figure C-3. Processor with Fabric PMD (Sheet 1 of 2)
%
%
%
%
;%
%% %
& &
&
&
&
&
;
'
'

;
'
$$
'
(
8
(
7239,(:



&
%
$
$
%
*
-
)
.
0$;
&20321(17+(,*+7
0$;
&20321(17+(,*+7
$
%
&
)
6(&7,21$$

&


$///*$/$1'6
&
)
)
'(7$,/$
6&$/(
)
)
'(7$,/%
6&$/(
)
)
'(7$,/&
6&$/(

62/'(55(6,6723(1,1*
'(7$,/'
68%675$7($/,*10(17),'8&,$/6$)
6&$/(

&
%
$
 
62/'(55(6,6723(1,1*
'(7$,/(
68%675$7($/,*10(17),'8&,$/6$)
6&$/(
;

&
%
$
;
'
'
'
;'
;'
;'
;'
;'
;'
;'
'(7$,/8
6&$/(

&
%
$

&
%
$

&
%
$

;

'(7$,/)
6&$/(
0$;
'6&+(,*+7
127(6
 $//72/(5$1&(6$5(566
685)$&(0$5.=21(12&20321(176$//2:('
 120,1$/3$&.$*(0$66 7%'*5$06$&78$/+(,*+70$<9$5<'8(720$18)$&785,1*352&(66
72/(5$1&(,635(/,0,1$5<$1'68%-(&772&+$1*(8321$9$,/$%,/,7<2))857+(5'$7$
(1$%/,1*0$5.=21(12&20321(176$//2:('
&20321(17.,=12722/,1*$//2:('
685)$&(+$1'/,1*=21(

&
*
)

&
*
)

&
*
)
6<0%2/
0,//,0(7(56
&200(176
120 72/
%


%


%


%


%


%


%


%


&


&


&


&


&


&


'

1$
'
 
'
 
'

1$
'

1$
'

1$
'

1$
'


'

1$
'
 
'
 
'
 
'
 
)
 
)


$
':*12
6+
5(9
+

+
$
7+,5'$1*/(352-(&7,21
0$7(5,$/
),1,6+
$33529('%<
&+(&.('%<
'5$:1%<
'(6,*1('%<
'$7(
'$7(
'$7(
'$7(
'21276&$/('5$:,1*
6&$/(
6+((72)
0,66,21&2//(*(%/9'
32%2;
6$17$&/$5$&$
'5$:,1*180%(5
6,=(
7,7/(
5(9
'(3$570(17

6((127(6
3$&.$*(0(&+$1,&$/
'5$:,1*
% %
&
'
&
'
*
+
( (
)
+
)
*
$
81/(6627+(5:,6(63(&,),('
',0(16,216$5(,10,//,0(7(56
,17(535(7',0(16,216$1'72/(5$1&(6
3(5$60(<
Processor Package Mechanical Drawings
Intel
®
Xeon
®
Phi™ Processor x200 Product Family TMSDG Order Number: 334785-002
64

Table of Contents

Related product manuals