EasyManua.ls Logo

Intel Xeon Phi Processor x200 - Socket Mechanical Drawing (Sheet 3 of 4)

Intel Xeon Phi Processor x200
114 pages
Print Icon
To Next Page IconTo Next Page
To Next Page IconTo Next Page
To Previous Page IconTo Previous Page
To Previous Page IconTo Previous Page
Loading...
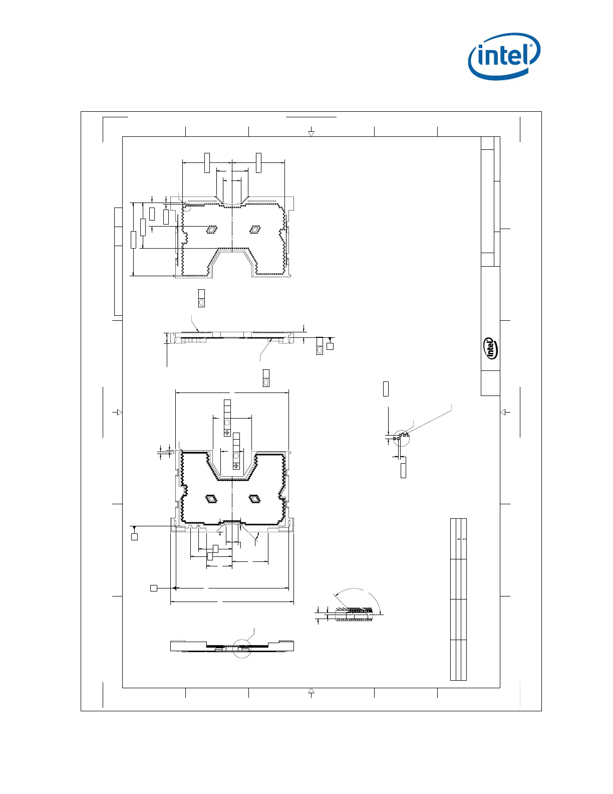
Figure D-3. Socket Mechanical Drawing (Sheet 3 of 4)



[

[
0,1
0,1


[
'
'

'
[&217$&77,36
0
$
%
&
0
$
%
&
%
&


$)7(5607
[
62/'(5%$//6
[
&217$&77,36
$






 
'
[ 
[52:6
[

[&2/8016
'(7$,/'
6&$/(
[62/'(5%$//6
62/'(5%$//
',$0(7(5
&



'(7$,/&
6&$/(
/()76,'(
&0
((
(&
($
':
'8
'5
'1
'/
'-
'*
'(
'&
'$
&:
&8
&5
&1
&/
&-
&*
&(
&&
&$
%:
%8
%5
%1
%/
%-
%*
%(
%&
%$
$:
$8
$5
$1
$/
$-
$*
$(
$&
$$
:
8
5
1
/
-
*
(
&
()
('
(%
'<
'9
'7
'3
'0
'.
'+
')
''
'%
&<
&9
&7
&3
&.
&+
&)
&'
&%
%<
%9
%7
%3
%0
%.
%+
%)
%'
%%
$<
$9
$7
$3
$0
$.
$+
$)
$'
$%
<
9
7
3
0
.
+
)
'
$
%
                     




62&.(7
' ' '
/*$

 
/*$
  

$
':*12
6+
5(9
-
-
$
'21276&$/('5$:,1*
6&$/(
6+((72)
'5$:,1*180%(5
6,=(
5(9
'(3$570(17
% %
&
'
&
'
( (
))
$
0,66,21&2//(*(%/9'
32%2;
6$17$&/$5$&$
Order Number: 334785-002 Intel
®
Xeon
®
Phi™ Processor x200 Product Family TMSDG
69
LGA3647-1 Socket-P1 Mechanical Drawings

Table of Contents

Related product manuals