EasyManua.ls Logo

Nautel V10 - Dimensional Information - V5;V3.5

Nautel V10
141 pages
Print Icon
To Next Page IconTo Next Page
To Next Page IconTo Next Page
To Previous Page IconTo Previous Page
To Previous Page IconTo Previous Page
Loading...
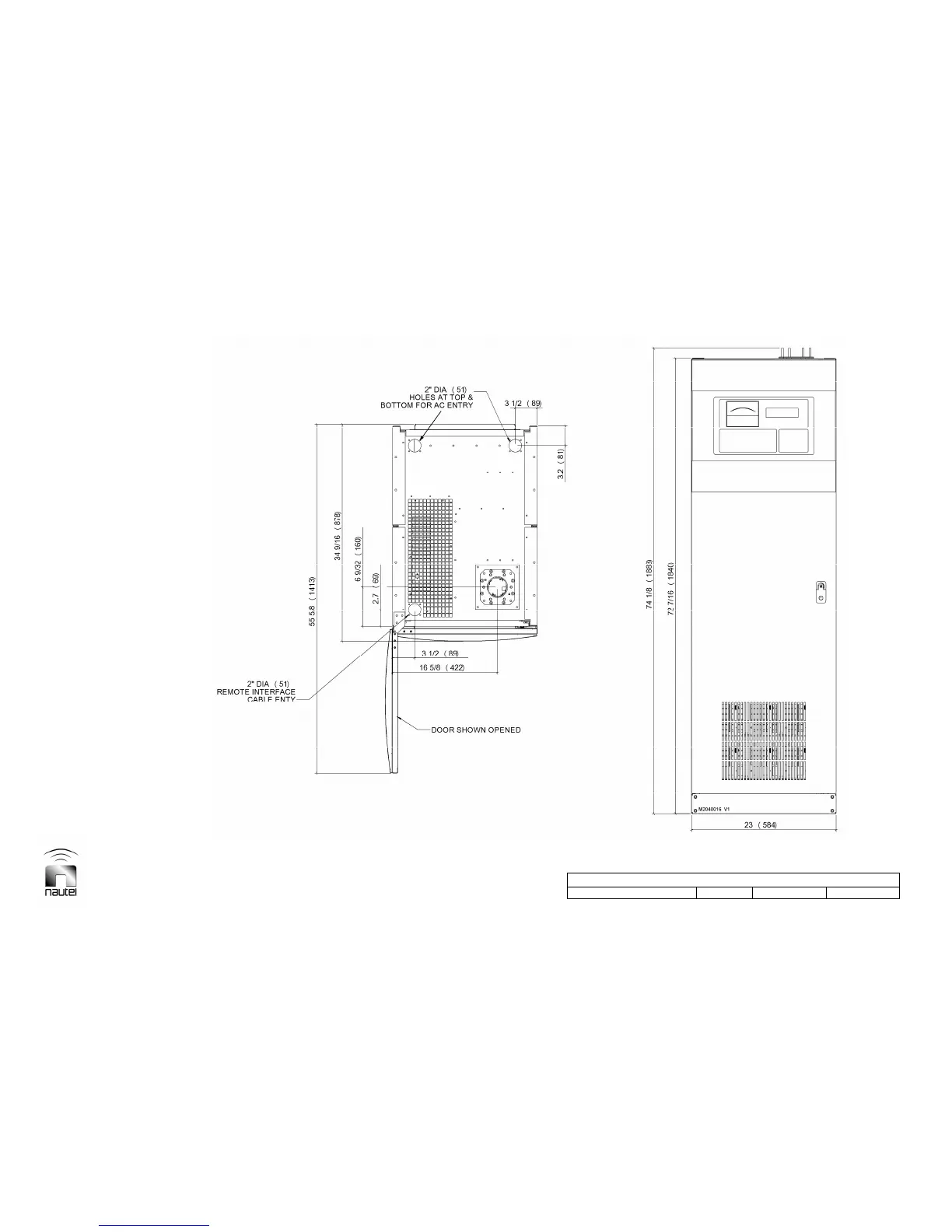
Dimensions = mm (inches)
Dimensional Information – V5/V3.5 Transmitter
Issue 3.5 Not to Scale Figure 2-9 Page 2-30

Table of Contents

Related product manuals