EasyManua.ls Logo

NAVIS NAVIOR-24S - Page 219

NAVIS NAVIOR-24S
228 pages
Print Icon
To Next Page IconTo Next Page
To Next Page IconTo Next Page
To Previous Page IconTo Previous Page
To Previous Page IconTo Previous Page
Loading...
N
AVIOR-24S Appendix F
Specifications and Mechanical Drawings
219
NAVIOR-24S ™ Revision V1.00 20.05.2008
4,15
1
Х1
3,2
15,9
20
19
1
2
Х501
5 max 5 max
1,6
±
0,1
50
75
38
71
0
2
2
0
46
1,8
4 отв.
2,2
2 отв.
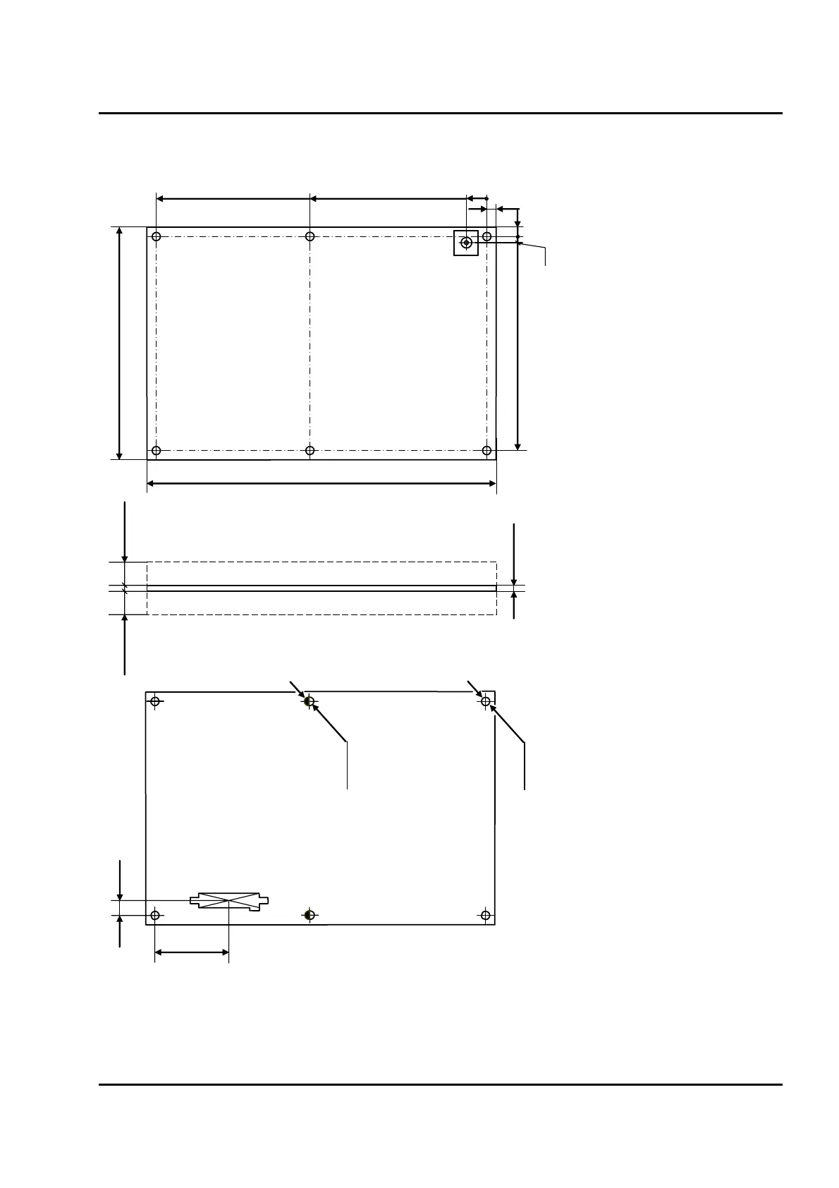
Figure IV-36. NAVIOR-24S GPS/GLONASS Receiver. Mechanical drawings.

Table of Contents