EasyManua.ls Logo

Rosemount 1151GP - Mechanical Considerations

Rosemount 1151GP
176 pages
Print Icon
To Next Page IconTo Next Page
To Next Page IconTo Next Page
To Previous Page IconTo Previous Page
To Previous Page IconTo Previous Page
Loading...
Reference Manual
00809-0100-4360, Rev BA
August 2008
Rosemount 1151
2-6
MECHANICAL CONSIDERATIONS
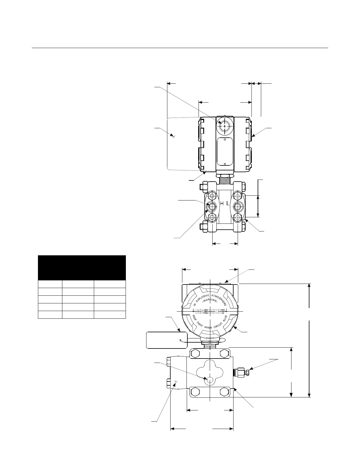
Dimensional Drawings
Range
Flange Distance “A”
Center to Center
inches mm
3, 4, 5 2.125 54
6, 7 2.188 56
8 2.250 57
9 2.281 58
0 2.328 59
½–14 NPT
Conduit
Connection
(2 Places)
Meter
Housing
Terminal Connections
This Side
¼–18 NPT on
Flanges for Pressure
Connection without
Flange Adapters
½–14 NPT on
Flange
Adapters
A
(See Table)
4.5 (114)
Max.
7.5 (191) Max.
with Optional Meter
0.75 (19)
Clearance for
Cover Removal
(Typical)
Transmitter
Circuitry
This Side
1.625
(41)
Blank Flange
Used on
AP and GP
Transmitters
Flange
Adapter
4.5 (114)
3.375
(86)
Flanges Can
Be Rotated
3.69
(94)
4.5 (114)
Max.
Permanent
Tag (Optional)
9.0 (229) Max.
Nameplate
Wired-on
Tag
(Standard)
Drain/Vent
Valve
¼–18 NPT for
Side Drain/Vent
(Optional Top
or Bottom)
NOTE
Dimensions are in inches (millimeters).
Figure 2-2. Rosemount
1151AP, DP, GP, and HP
Dimensional Drawings.

Table of Contents

Related product manuals