EasyManua.ls Logo

Siemens Simatic S7-300 - Page 474

Siemens Simatic S7-300
594 pages
To Next Page IconTo Next Page
To Next Page IconTo Next Page
To Previous Page IconTo Previous Page
To Previous Page IconTo Previous Page
Loading...
Dimensional drawings
C.1 Dimensional drawings of the mounting rails
S7-300 Automation System Module data
C-4 Manual, 08/2006, A5E00105505-04
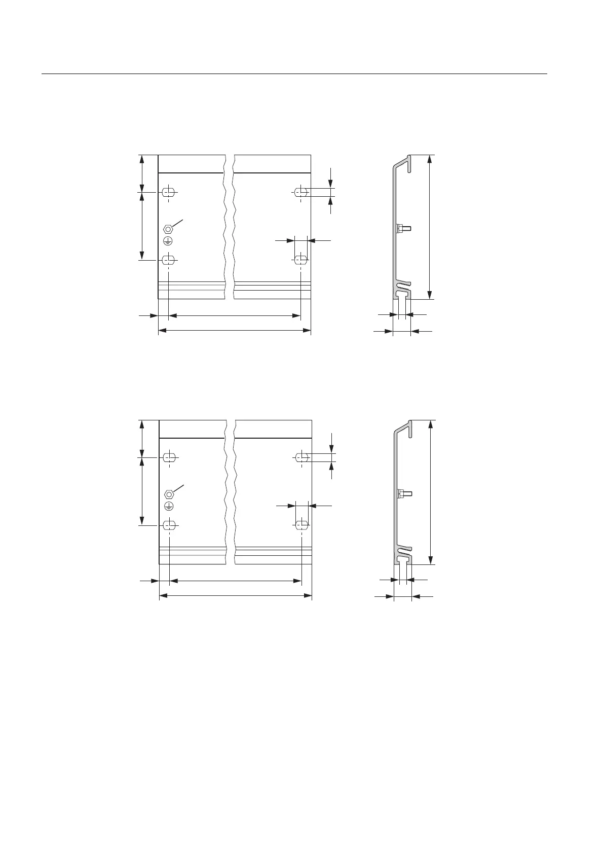
Mounting rail 160 mm
The figure below shows the dimensional drawing of the 160 mm mounting rail.







0
Figure C-5 Dimensional drawing of the mounting rail with standard width of 160 mm.
Mounting rail 482.6 mm
The figure below shows the dimensional drawing of the 482.6 mm mounting rail.







0
Figure C-6 Dimensional drawing of the mounting rail with standard width of 482.6 mm.

Table of Contents

Other manuals for Siemens Simatic S7-300

Related product manuals