EasyManua.ls Logo

Siemens Simatic S7-300 - Page 480

Siemens Simatic S7-300
594 pages
To Next Page IconTo Next Page
To Next Page IconTo Next Page
To Previous Page IconTo Previous Page
To Previous Page IconTo Previous Page
Loading...
Dimensional drawings
C.2 Dimensional drawings of the power supply modules
S7-300 Automation System Module data
C-10 Manual, 08/2006, A5E00105505-04
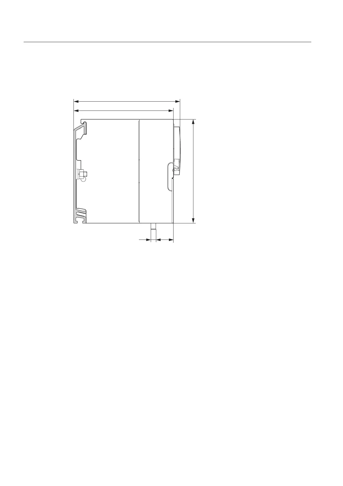
PS 307; 5 A with 313/314/315/ 315-2 DP CPU
The figure below shows the dimensional drawing of power supply module PS 307; 5 A with
313/314/315/315-2 DP CPU in the side view.




Figure C-14 Dimensional drawing power supply module PS 307; 5 A with CPU 313/314/315/315-2
DP, side view

Table of Contents

Other manuals for Siemens Simatic S7-300

Related product manuals