EasyManua.ls Logo

Siemens SIMATIC - Digital Output Module SM 322; DO 16 X AC 120;230 V;1 A; (6 ES7322-1 FH00-0 AA0)

Siemens SIMATIC
648 pages
Print Icon
To Next Page IconTo Next Page
To Next Page IconTo Next Page
To Previous Page IconTo Previous Page
To Previous Page IconTo Previous Page
Loading...
Digital modules
3.27 Digital output module SM 322; DO 16 x AC 120/230 V/1 A; (6ES7322-1FH00-0AA0)
S7-300 Module data
Manual, 06/2017, A5E00105505-AJ
167
3.27 Digital output module SM 322; DO 16 x AC 120/230 V/1 A;
(6ES7322-1FH00-0AA0)
Order number
6ES7322-1FH00-0AA0
Properties
Properties of digital output module SM 322; DO 16 x AC120/230 V/1 A:
16 outputs, fused and electrically isolated in groups of 8
Output current 1 A
Rated load voltage 120/230 VAC
Suitable for AC solenoids, actuators, motor starters, FHP motors and signal lamps
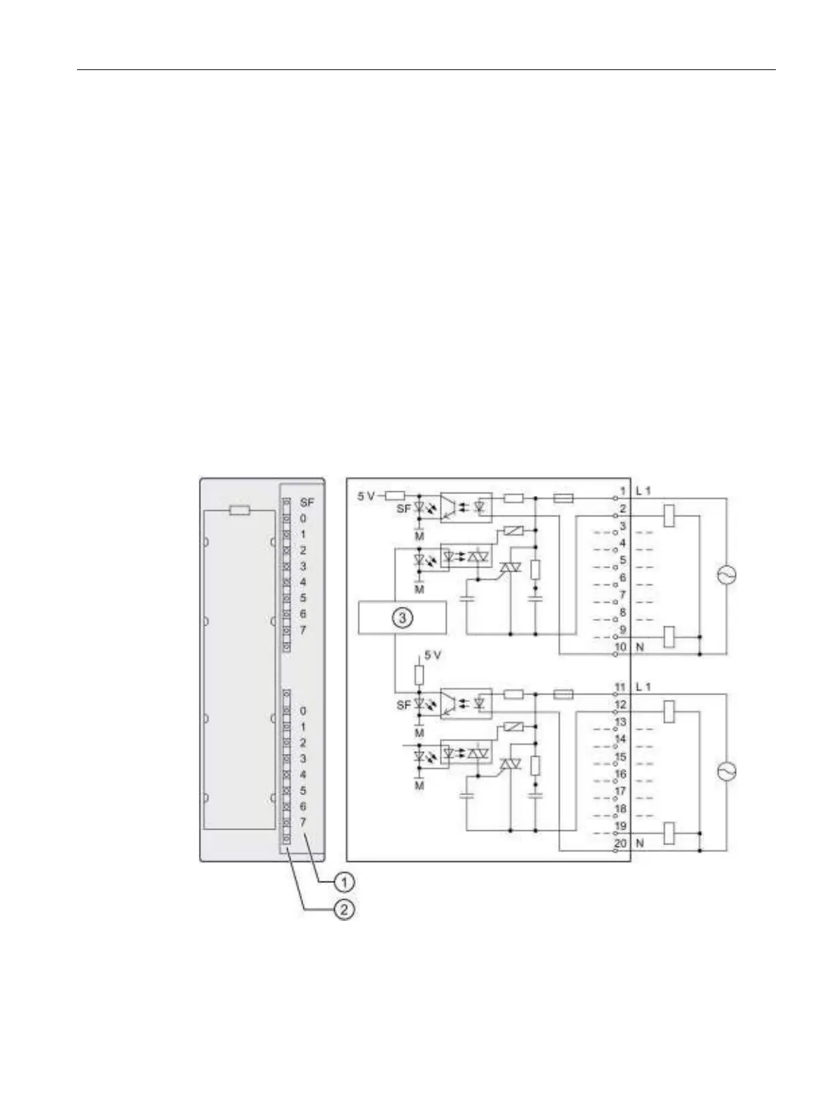
Wiring and block diagram of SM 322 DO 16 x AC120/230 V/1 A
Channel number
Status LEDs - green
Error LED - red
Backplane bus interface

Table of Contents

Other manuals for Siemens SIMATIC

Related product manuals