EasyManua.ls Logo

Technogym Forma - Previous Model

Technogym Forma
140 pages
Print Icon
To Next Page IconTo Next Page
To Next Page IconTo Next Page
To Previous Page IconTo Previous Page
To Previous Page IconTo Previous Page
Loading...
FORMA: Service & Maintenance manual - rev. 3.0
Page 2.10
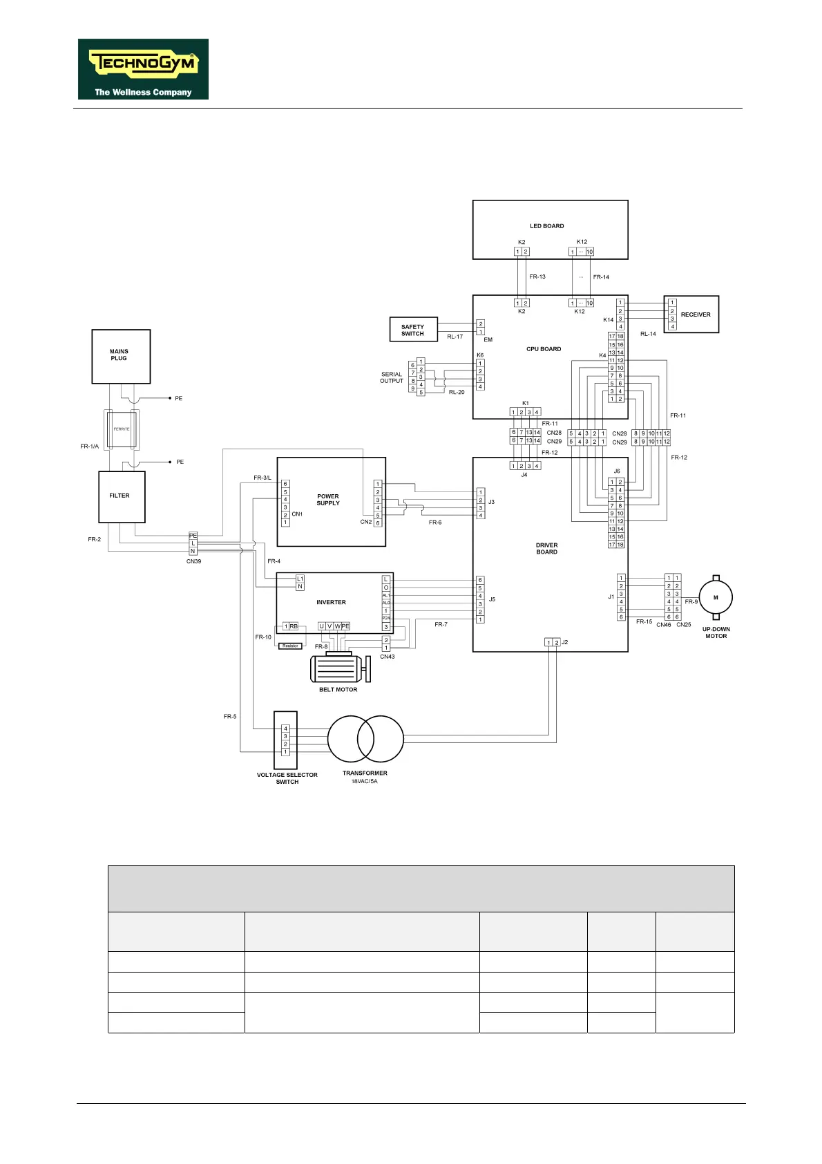
2.5.4. P
REVIOUS MODEL
This machine version, subsequently identified with the name Forma 2:
For the cables, refer to the description in the preceding paragraph with the exception of cables FR-
1/A and FR-7 which are described below:
FR-1/A: Filter cable
Power inlet socket – Filter
Power inlet
socket
Signal Color Filter PE
Fast on Live Black Fast on -
Fast on Neutral Blue Fast on -
Fast on Yellow-green -
-
Earth
Yellow-green Fast on
Eyelet

Table of Contents

Related product manuals