EasyManua.ls Logo

Westerbeke 65A-FOUR - Page 76

Westerbeke 65A-FOUR
110 pages
Print Icon
To Next Page IconTo Next Page
To Next Page IconTo Next Page
To Previous Page IconTo Previous Page
To Previous Page IconTo Previous Page
Loading...
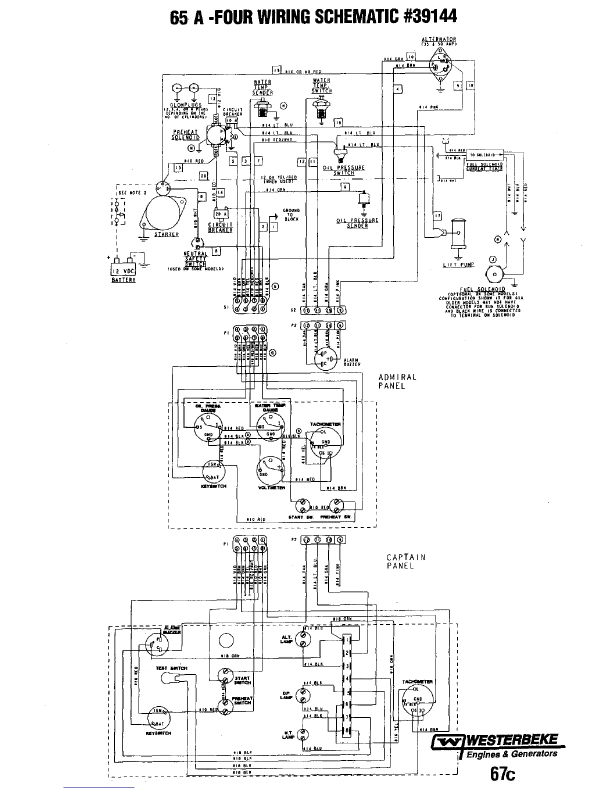
65
A
-FOUR
WIRING
SCHEMATIC
#39144
1-----
I
SEC
NOH Z
;~'
~
, ,
,
,
~
,
,
,
,~
~~
l!ill.lli
"
I.
"~
"t;
. .
!
~
- :
-.
.
:! ;
.
;;,@
,
;;
-
+
~LAAN
C
8UZZER
-
r
--
-
-
-------
- -
~
.....
.ATa-_.
l€
..
£!J.
~
114
r.L~®
\
GNO
\\<I'
L
'"
••
,
..
/iGiI';:!
~
:\
p:v
'L--
~
'04
R[O
ICIYSWlTOI
~""""
114
RRN
,
(!)."
.,.(0"[----]
,
,
STAIIT M .
,..:.
SW.
r"
I
,0
R(O
,
I
________________________________
J
ADMIRAL
PANEL
CAPTAIN
PANEL
,
'I---+-~
~
1,4
BL
~
G~D
..:r.,~L
'l
6~
&)
,0
J..l!Lt'..lI.ti
o
lonro~~~
6t~~QJuDuH~,
COfolfl(;UUlIOM SHOIN
,S
fOR
is'''
OLDER
MOons
MH
HGI
MAY[
COHII£CTO~
fOR
RUN
suUNO'O
AND
BLACK
.,Ar
IS CDNN(CHD
10
TUWINH
ON
SOL[NOID
1
,
I
,
I
,
,
,
I
,
I
,
I
,
,
~
W
I
IU
,
.
I
,;-;,-;-
) -
_
L~~~~~~~~~~·~~".~"~L8~l~l[.~
'~'WEsn:RBE«E
i' Engines & Generators
---
__
J
67c

Related product manuals