EasyManua.ls Logo

Wolf COB-2 - Page 81

Wolf COB-2
96 pages
Print Icon
To Next Page IconTo Next Page
To Next Page IconTo Next Page
To Previous Page IconTo Previous Page
To Previous Page IconTo Previous Page
Loading...
Appendix
3066501_201910 WOLF GmbH | 81
Differential pressure sensor 0.5-4.5V
HSLC
GND
Flow sensor
Oil pump N
Oil valve 1 N
Oil valve 2 N
Oil valve 1 L
Oil valve 2 L
Oil pump L
230V L
230V N
+23V
CC RX
CC TX
GND
Res.
HSLC
Differential pressure sensor VCC 23
GND
Flue gas sensor
Fan PWM
Differential pressure sensor GND
Fan GND
Fan Hall
5
2
gn
wh
2
3
bl
sw
br
br
ye
gn
br
sw
ye
sw
17
X2:1
1X:1
9
6
g
n
g
e
gnge
7
6
sw
br
rt
or
6
5
N
Fan N
Fan L
Ignition
N
Ignition
L
7
5
4
9
1
6
7
L
Flame 1/ 0
X3:1
8
3
4
5
2
1
ye
gn
>
ye
br
wh
gn
gr
br
6
7
8
gnge
9
4
br
gr
1
1
2
2
3
5
5
6
6
4
4
8
8
9
9
7
7
X6:
HCM-2
gnge
2
3
G
N
D
3
3
X4:1
X5
gnge
bl
sw
PE
1
2
Out
Vc23
OBC / CM368
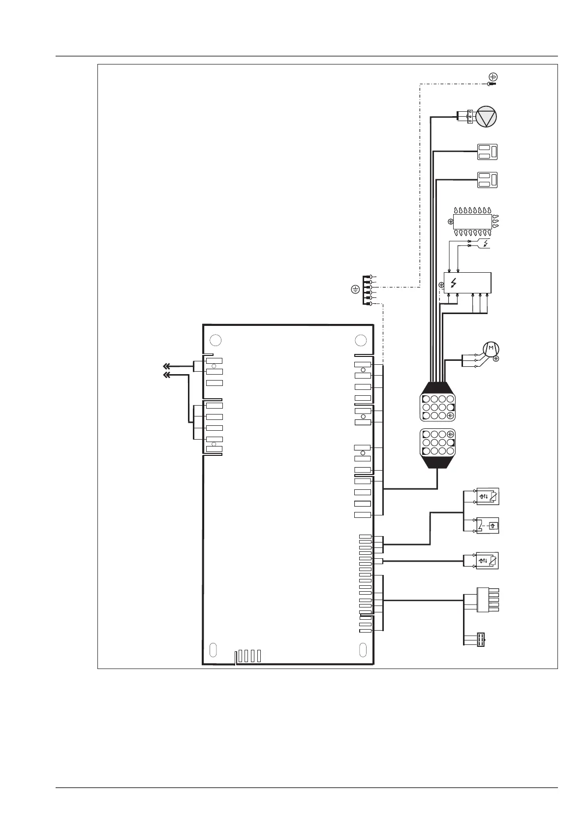
Fig. 12.2 Oil burner control unit OBC / CM368 wiring diagram
q Appliance chassis earthing
w Oil pump
e Oil valve 1
r Oil valve 2
t Oil burner
y Ignition electrodes
u Ignition unit with ame detection
i Fan 230 V AC
o Boiler temperature sensor
a High limit safety cut-out
s Flue gas temperature sensor
d Fan PWM signal
f Differential pressure sensor

Table of Contents

Related product manuals