EasyManua.ls Logo

Yanmar 4JH4E - Page 54

Yanmar 4JH4E
350 pages
Print Icon
To Next Page IconTo Next Page
To Next Page IconTo Next Page
To Previous Page IconTo Previous Page
To Previous Page IconTo Previous Page
Loading...
1. General
34
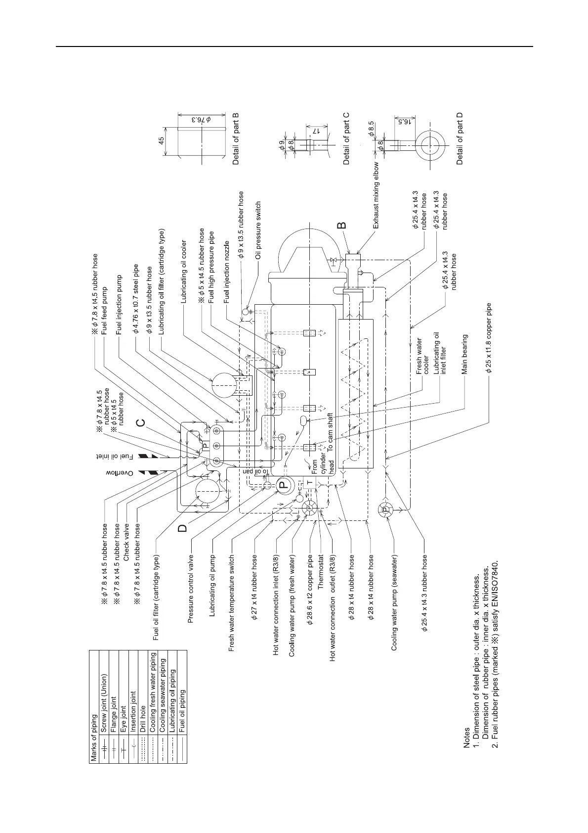
(2) 3JH4CE (with SD50/SD40 sail drive)
015032-00E

Table of Contents

Related product manuals