EasyManua.ls Logo

Aastra Ascotel IntelliGate A150 - Page 298

Aastra Ascotel IntelliGate A150
524 pages
To Next Page IconTo Next Page
To Next Page IconTo Next Page
To Previous Page IconTo Previous Page
To Previous Page IconTo Previous Page
Loading...
System Functions and Features as of I7.9
298 Call logging (CL)
syd-0200/3.0 – I7.9 – 11.2009
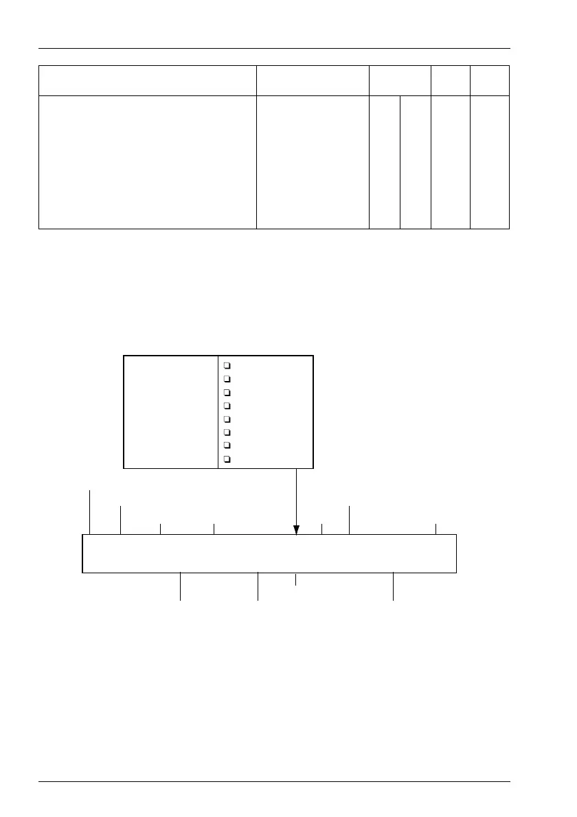
Example of PC2 format
Fig. 156 CL output with PC2
Primary channel group / trunk card number / net-
work interface number
1)
cbbpp 00 -| 5 42
Direct dial number
2)
ddddddddddd |- SP 11 48
Number of metering pulses iiiii 00 -| 5 60
Call number dialled
3)
zzzzzzzzzzzzzzzzzzzz |- SP 20 66
Serial number llll 00 -| 4 87
Carriage Return CR 1 91
Line Feed LF 1 92
1)
The primary channel group is output in position "c", the trunk card number in position "bb" and the network
interface number in position "pp" (see example on page 298).
2)
This is the direct dial number that is displayed as the CLIP to an external call partner.
3)
If Data protection is configured, the last 4 digits of the number are replaced by the space character "SP".
Data field, meaning Structure Format
Lengt
h
Offset
9
$-PVUQVU
*OUFSOBMVTFSOVNCFS
/VNCFSPGNFUFSJOHQVMTFT
4FSJBMOVNCFS
4PSUDIBSBDUFS
5JNF
5SVOLDPOOFDUJPOT
$BMMEVSBUJPO /VNCFSEJBMMFE%BUFJO1$NPEF
::..%%
%%*/P
$PTUDFOUSFOVNCFS
0''
1$
1$
1$
1$
1$
1SPUPDPM
3FDFJQU
     ).     
    ).    

Table of Contents

Related product manuals