EasyManua.ls Logo

ABB ACS550 - Page 161

ABB ACS550
310 pages
Print Icon
To Next Page IconTo Next Page
To Next Page IconTo Next Page
To Previous Page IconTo Previous Page
To Previous Page IconTo Previous Page
Loading...
ACS550 User’s Manual 161
Parameters
4002 INTEGRATION TIME
Defines the PID controller’s integration time.
Integration time is, by definition, the time required to increase the
output by the error value:
Error value is constant and 100%.
Gain = 1.
Integration time of 1 second denotes that a 100% change is
achieved in 1 second.
0.0 =
NOT SEL – Disables integration (I-part of controller).
0.1…3600.0 – Integration time (seconds).
See 4001 for adjustment procedure.
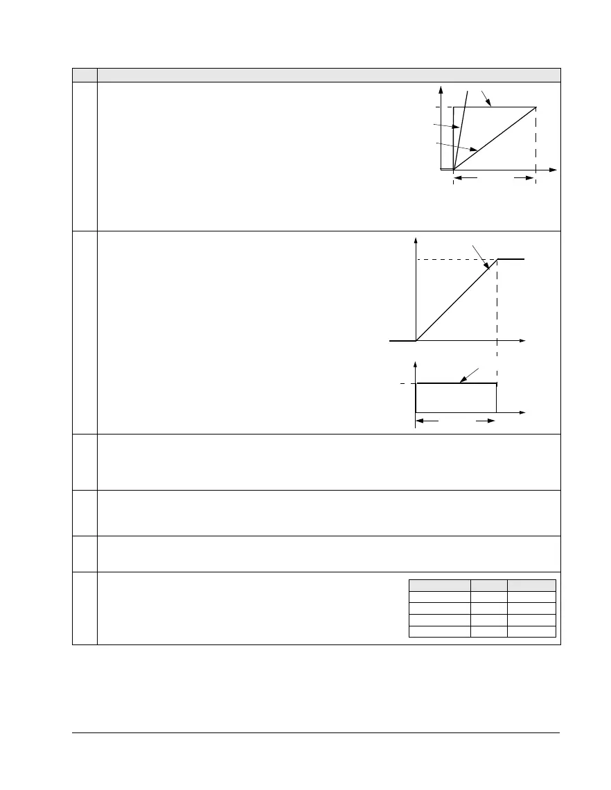
4003 DERIVATION TIME
Defines the PID controller’s derivation time.
You can add the derivative of the error to the PID controller
output. The derivative is the error value’s rate of change. For
example, if the process error value changes linearly, the
derivative is a constant added to the PID controller output.
The error-derivative is filtered with a 1-pole filter. The time
constant of the filter is defined by parameter 4004
PID DERIV
FILTER.
0.0…10.0 – Derivation time (seconds).
4004 PID DERIV FILTER
Defines the filter time constant for the error-derivative part of the PID controller output.
Before being added to the PID controller output, the error-derivative is filtered with a 1-pole filter.
Increasing the filter time smooths the error-derivative, reducing noise.
0.0…10.0 – Filter time constant (seconds).
4005 ERROR VALUE INV
Selects either a normal or inverted relationship between the feedback signal and the drive speed.
0 =
NO – Normal, a decrease in feedback signal increases drive speed. Error = Ref - Fbk
1 =
YES – Inverted, a decrease in feedback signal decreases drive speed. Error = Fbk - Ref
4006 UNITS
Selects the unit for the PID controller actual values. (PID1 parameters 0128, 0130 and 0132).
See parameter 3405 for list of available units.
4007 UNIT SCALE
Defines the decimal point location in PID controller actual values.
Enter the decimal point location counting in from the right of the entry.
See the table for example using pi (3.14159).
Code Description
P 4002
A
C (P 4001 = 1)
B
A = Error
B = Error value step
C = Controller output with Gain = 1
D = Controller output with Gain = 10
D (P 4001 = 10)
t
100%
Gain
Process error value
P 4003
D-part of controller output
PID output
Error
0%
P 4001
t
t
4007 value Entry Display
0 0003 3
1 0031 3.1
2 0314 3.14
3 3142 3.142

Table of Contents

Other manuals for ABB ACS550

Related product manuals