EasyManua.ls Logo

Barco SP2K-S - Dimensions of the Projector

Barco SP2K-S
158 pages
Print Icon
To Next Page IconTo Next Page
To Next Page IconTo Next Page
To Previous Page IconTo Previous Page
To Previous Page IconTo Previous Page
Loading...
R5913197 /02 SP2K-S146
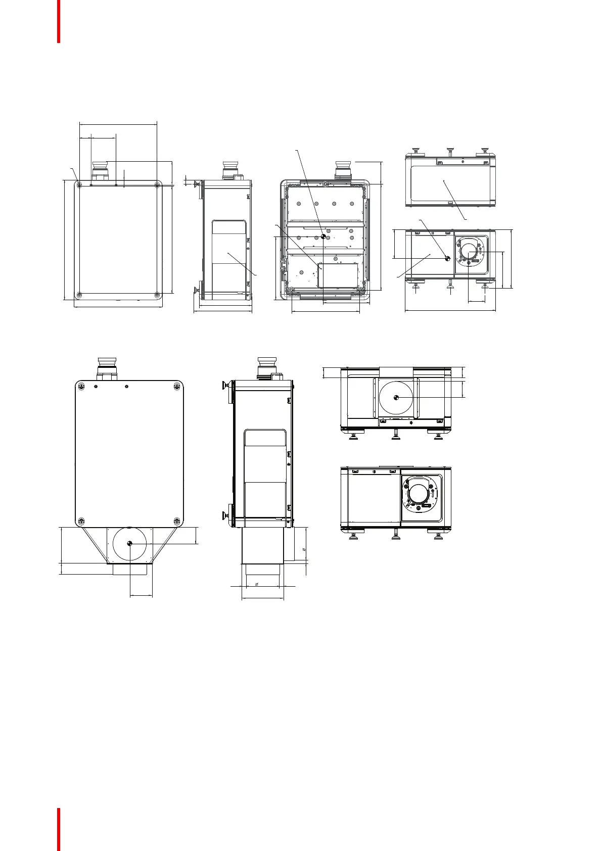
A.1 Dimensions of the projector
Dimensions of the projector
188.5
650
881
127.9
426
794.8
30.9
572
86.5
500
345
AIR INLET
460
CENTER OF GRAVITY
AIR INLET
780
121.3
202.5
267.5
426
117.13
650
CENTER OF GRAVITY
AIR OUTLET
AIR INLET
37.5
M10 (6x)
389
Image A–1 Dimensions given in mm
Dimensions of the projector with the exhaust adapter
124
21863
100
200
248
200
100
24 24
18
63
56
Image A–2
Dimensions

Table of Contents

Related product manuals