EasyManua.ls Logo

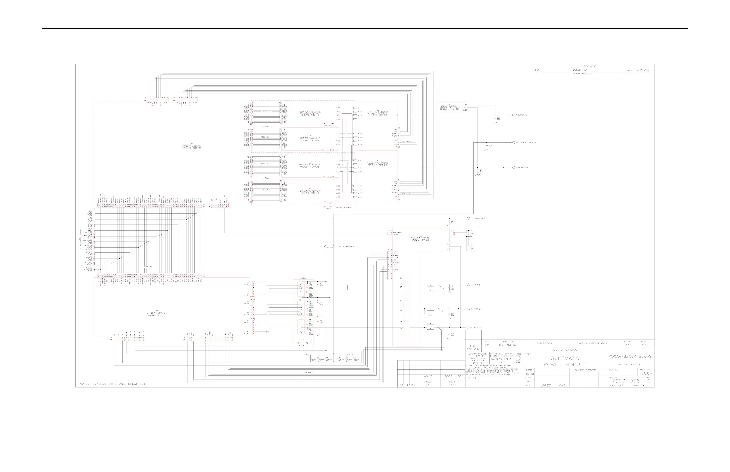
California Instruments MX30-1 - Figure 5-3: Power Module Detailed Block Diagram

California Instruments MX30-1
246 pages
Print Icon
To Next Page IconTo Next Page
To Next Page IconTo Next Page
To Previous Page IconTo Previous Page
To Previous Page IconTo Previous Page
Loading...
User Manual - Rev AJ
MX Series
California Instruments
149
Figure 5-3: Power Module Detailed Block Diagram

Table of Contents

Related product manuals