EasyManua.ls Logo

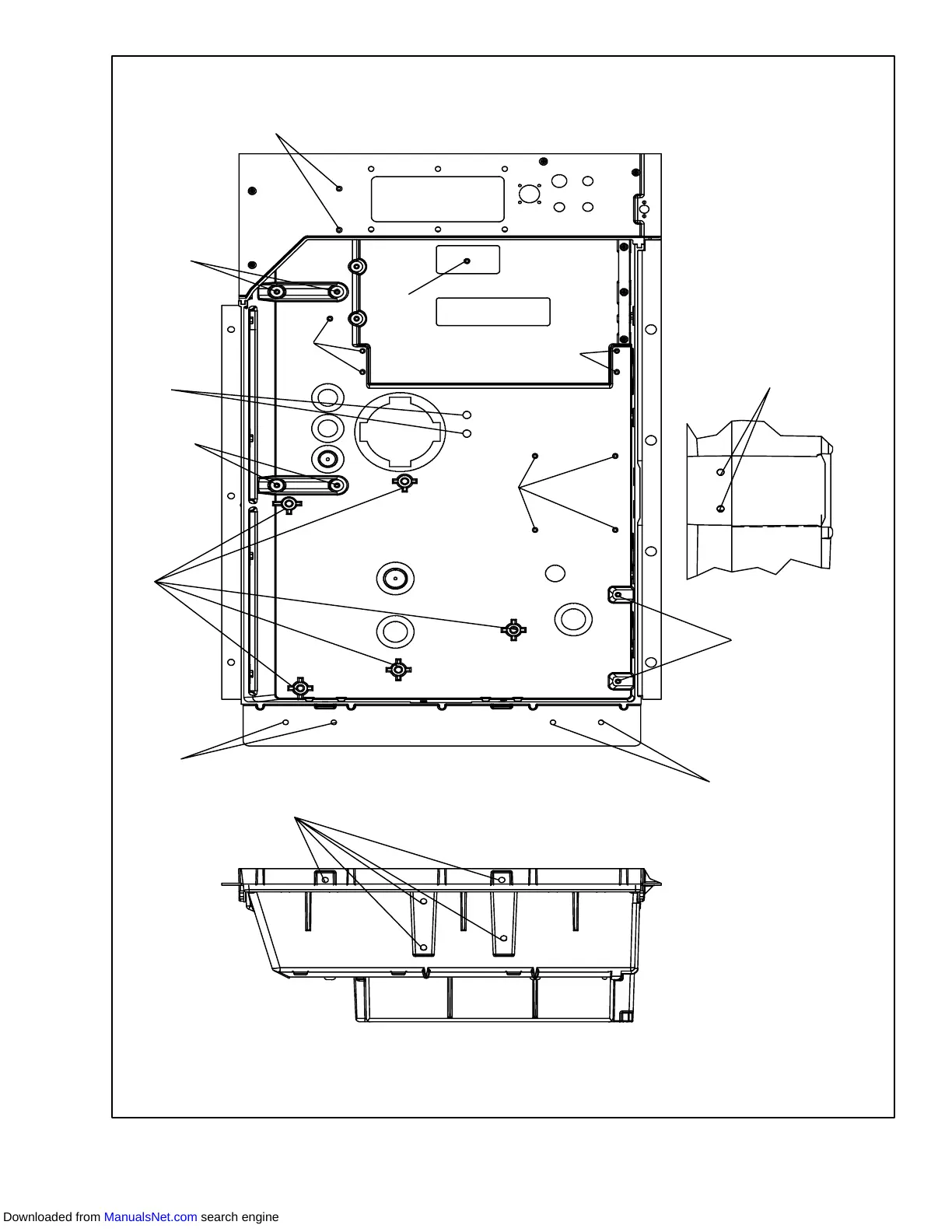
Carrier 69NT40-511-310 - Figure 6-35. Insert Location

Carrier 69NT40-511-310
116 pages
Print Icon
To Next Page IconTo Next Page
To Next Page IconTo Next Page
To Previous Page IconTo Previous Page
To Previous Page IconTo Previous Page
Loading...
6-31
T -296
03
03
03
03
03
04
04
03
01
07
07
05
05
06
INSERT PART NUMBERS 34--06231--## WHERE THE ## IS AS INDICATED
Figure 6-35. Insert Location
Downloaded from ManualsNet.com search engine

Table of Contents

Related product manuals