EasyManua.ls Logo

DAB evoplus - Page 196

DAB evoplus
Print Icon
To Next Page IconTo Next Page
To Next Page IconTo Next Page
To Previous Page IconTo Previous Page
To Previous Page IconTo Previous Page
Loading...
ý(6.<
CZ
194
3RNXGQDQČNWHUpVWUiQFHQDOH]QHWHV\PERONOtþHYGROQtþiVWLYOHYR]QD-
PHQiWRåHQHQtPRåQpPČQLWQDVWDYHQt3URRGEORNRYiQtPHQXMGČWH
QDGRPRYVNRXVWUiQNXDVWLVNQČWHQDMHGQRXVNU\WpWODþtWNRDWODþtWNRSRG
NOtþHPDGUåWHGRNXGV\PEROQH]PL]t
3RNXGQHQt åiGQp WODþtWNR VWLVNQXWp SR GREX  PLQXW QDVWDYHQt
se zablokují automaticky a displej se zhasne. Stisknutí libovolného
WODþtWNDVHGLVSOHM]YRYXUR]VYtWtD]REUD]tVHGRPRYVNiVWUiQND
3URQDYLJDFLXYQLWĜPHQXVWLVNQČWHWODþtWNRXSURVWĜHG
3URQiYUDWQDSĜHGFKR]tVWUDQXGUåWHVWLVNQXWpVNU\WpWODþtWNRDVWLVNQČWH
DLKQHGXYROQČWHWODþtWNRXSURVWĜHG
3UR]PČQČQtQDVWDYHQtSRXåLMWHOHYpDSUDYpWODþtWNR
3URSRWYU]HQtSURYHGHQp]PČQ\QDVWDYHQtVWLVNQČWHQDYWHĜLQ\WODþtWNR
³2.´-DNPLOHSUREČKQHSRWYU]HQtREMHYtVHLNRQD:
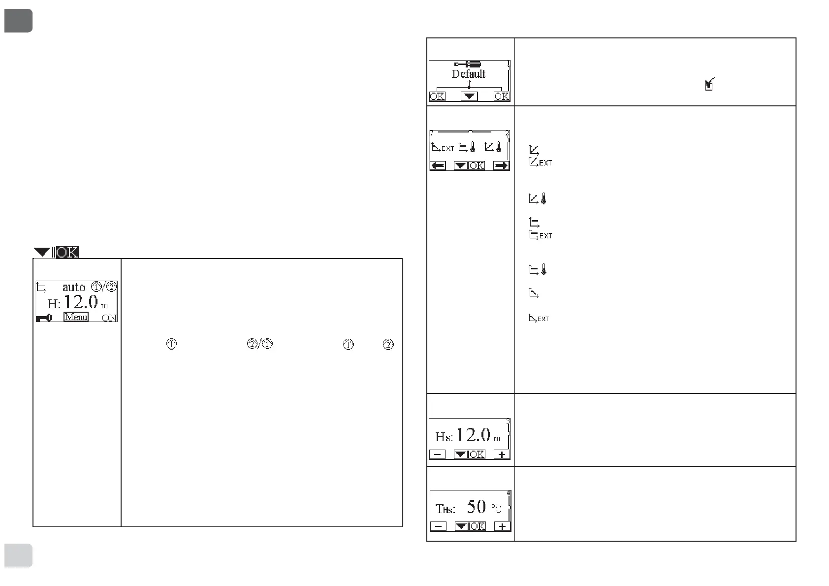
Home Page
9 GRPRYVNpVWUiQFH MVRX JUD¿FN\]Qi]RUQČQi KODYQt QDVWD-
vení systému.
,NRQDQDKRĜHYOHYRLQGLNXMHW\S]YROHQpUHJXODFH
,NRQDQDKRĜHXSURVWĜHGLQGLNXMH]YROHQêSURYR]QtUHåLPDXWR
nebo economy)
,NRQDQDKRĜHYSUDYRLQGLNXMHSĜtWRPQRVWVDPRVWDWQpKR
inverteruQHERGYRMþHWH2WRþHQtLNRQ\ nebo
R]QDþXMHMDNpFLUNXODþQtþHUSDGORMHYþLQQRVWL
8SURVWĜHG GRPRYVNp VWUiQN\ VH QDFKi]t SDUDPHWU SRX]H
SUR QDKOpGQXWt NWHUê PĤåH EêW ]YROHQê ]H VDG\ SDUDPHWUĤ
SURVWĜHGQLFWYtPVWUDQ\PHQX
= GRPRYVNp VWUiQN\ MH PRåQp YVWRXSLW GR VWUiQN\ UHJXODFH
NRQWUDVWQRVWLGLVSOHMHSRGUåHQtPVWLVNQXWpKRVNU\WpKRWODþtWND
DVWLVNQXWtPDQiVOHGQêPXYROQČQtPSUDYpKRWODþtWND
&LUNXODþQt þHUSDGOD (923/86 GiYDMt N GLVSR]LFL  PHQX
PHQX XåLYDWHOH D SRNURþLOp PHQX 0HQX XåLYDWHOH MH
SĜtVWXSQp ] GRPRYVNp VWUiQN\ VWLVNQXWtP D QiVOHGRYQêP
XYROQČQtPWODþtWNDXSURVWĜHG0HQX´
3RNURþLOp PHQX MH SĜtVWXSQp ] GRPRYVNp VWUiQN\ VWLVNQXWtP
WODþtWND0HQXDMHKRSRGUåHQtPYWHĜLQ
Pagina 1.0
1DVWUDQČVHYROtQDVWDYHQtYêUREFHWDNåHVHVWLVNQRX
]iURYHĖOHYpDSUDYpWODþtWNRQDGREXYWHĜLQ
3RREQRYHQtQDVWDYHQtYêUREFH]PL]tÀDJYHGOHR]QDþHQt
“Default”.
Pagina 2.0
1DVWUDQČ VH QDVWDYXMHUHåLPUHJXODFH 0RKRXVH ]YROLW
QiVOHGXMtFtUHåLP\
 5HJXODFHVSURSRUFLRQiOQtPGLIHUHQþtPWODNHP
2 = 5HJXODFHV SURSRUFLRQiOQtPGLIHUHQþQtP WODNHP
VHVHWSRLQWQDVWDYHQêPSURVWĜHGQLFWYtPH[WHUQtKRVLJQiOX
10V o PWM).
2YOiGDFtUHåLPSURSRUFLRQiOQtKRGLIHUHQFLiOQtKRWODNXV
QDVWDYHQêPSUDFRYQtPERGHPQD]iNODGČWHSORW\
4 =5HJXODFHVNRQVWDQWQtPGLIHUHQþQtPWODNHP
5 = 5HJXODFHVNRQVWDQWQtPUHJXODþQtPWODNHPVHVHW
SRLQW QDVWDYHQêP SURVWĜHQLFWYtP H[WHUQtKR VLJQiOX 9
nebo PWM).
6 = 2YOiGDFtUHåLPNRQVWDQWQtKRGLIHUHQFLiOQtKRWODNXV
QDVWDYHQêPSUDFRYQtPERGHPQD]iNODGČWHSORW\
7 =5HJXODFHVSHYQRXNĜLYNRXVURWDþQtU\FKORVWtQDVWD-
venou z displeje.
8 =5HJXODFHVSHYQRXNĜLYNRXVURWDþQtU\FKORVWtQDVWDYH-
nou z externího signálu (0-10V nebo PWM).
1DVWUDQČMVRX]REUD]HQpLNRQ\NWHUpSĜHGVWDYXMt
LNRQDXSURVWĜHG DNWXiOQČ]YROHQiQDVWDYHQt
- ikona vpravo = následující nastavení
LNRQDYOHYR SĜHGFKR]tQDVWDYHQt
Pagina 3.0
1DVWUDQČMHPRåQp]PČQLWUHJXODþQtVHWSRLQW
3RGOHW\SXUHJXODFH]YROHQpKRQDSĜHGFKR]tVWUiQFHQDVWD-
YRYDQêP VHWSRLQWHP EXGH YêWODþQi YêãND QHER Y SĜtSDGČ
SHYQp NĜLYN\ WR EXGH SURFHQWXiOQt KRGQRWD Y]WDKXMtFt VH QD
URWDþQtU\FKORVW
Pagina 4.0
1DVWUDQČ MHPRåQp]PČQLW SDUDPHWU7+V VHNWHUêPVH
SURYiGtNĜLYND]iYLVORVWLQDWHSORWČYL]RGVW
4WDWRVWUDQDVH]REUD]tSRX]HSURUHJXODþQtUHåLP\Y]iYLVORVWL
QDWHSORWČNDSDOLQ\

Table of Contents

Related product manuals