EasyManua.ls Logo

Danfoss MAGFLO MAG 5000 - Page 32

Danfoss MAGFLO MAG 5000
84 pages
To Next Page IconTo Next Page
To Next Page IconTo Next Page
To Previous Page IconTo Previous Page
To Previous Page IconTo Previous Page
Loading...
32
MAGFLO
â
D & W
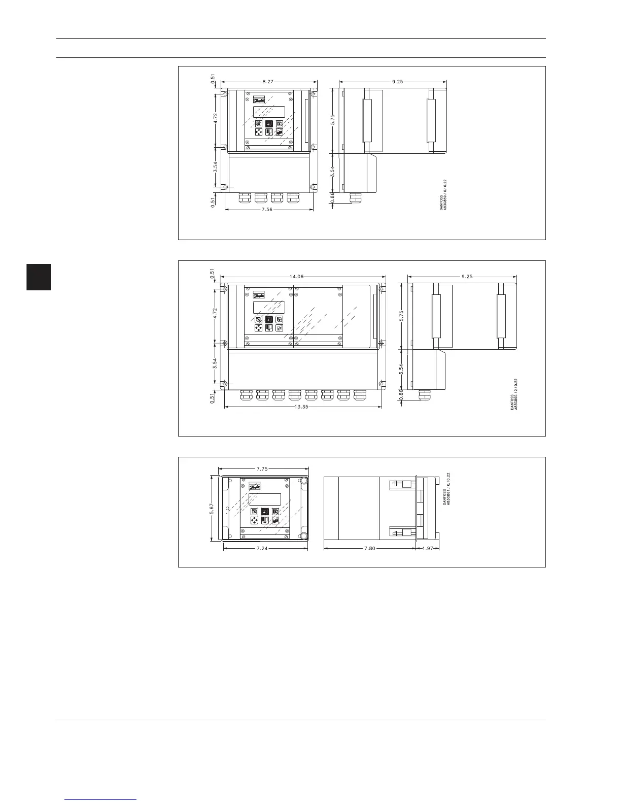
4. Dimensions and weight
Wall mounting converter
Weight excl. signal converter: 8.0 lbs
Wall mounting converter
with cleaning unit or
intrincically safe barrier
Weight excl. signal converter: 7.0 lbs
Front panel mounting kit
Weight excl. signal converter: 3.0 lbs

Table of Contents

Related product manuals