EasyManua.ls Logo

Datalogic DS5100-X200 - Page 60

Datalogic DS5100-X200
164 pages
To Next Page IconTo Next Page
To Next Page IconTo Next Page
To Previous Page IconTo Previous Page
To Previous Page IconTo Previous Page
Loading...
DS5100 REFERENCE MANUAL
44
3
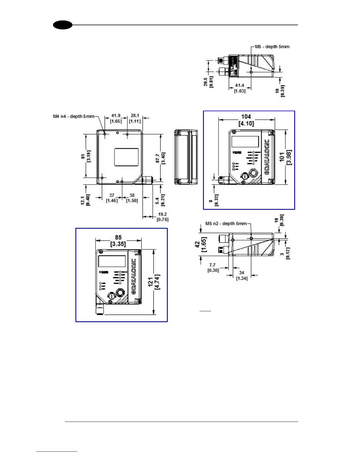
Connector block rotates to 90° position.
Figure 16 DS5100 Standard Ethernet Model Overall Dimensions
mm
[in]

Table of Contents

Related product manuals