EasyManua.ls Logo

ELTRA CS-800 - Halogen Trap - Installing; Gas Saving Mode

ELTRA CS-800
158 pages
Print Icon
To Next Page IconTo Next Page
To Next Page IconTo Next Page
To Previous Page IconTo Previous Page
To Previous Page IconTo Previous Page
Loading...
Service
115
Pos: 9.22 /0 020 Über sc hrif ten /ELT RA 1.1 Über sc hri ften /11 H al og en tr ap - i nstal ling ELT RA @ 6\ mod_1369643531895_9.docx @ 42553 @ 2222223223 @ 1
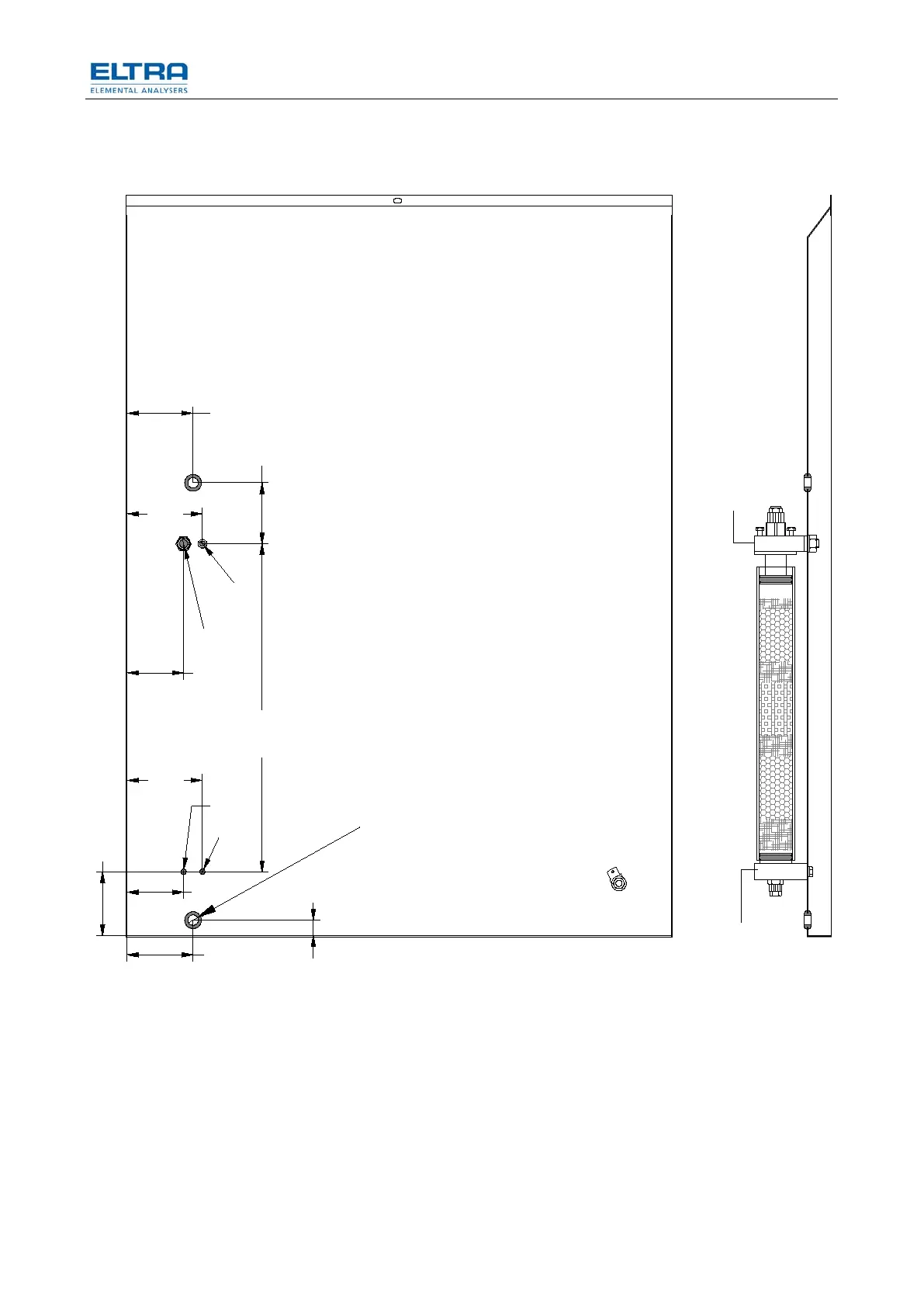
5.11 62BHalogen trap - installing
Pos: 9.23 /0 010 ELTR A/ 0015 s ervic e_i nstr uc tio ns/C S-800 _S ervic e/ 002 5 Ser vic e/ 038 5 M odul H al oge n tr ap - i nst alli ng @ 6\ mod_1377688644390_9.docx @ 47275 @ 323343344 @ 1
Fig. 63: Halogen trap installation (3-20-1)
Pos: 9. 24 /00 20 Übers chrif ten/E LTRA 1.1 Übers chri ften/1 1 Gas sa ving mod e ELTR A @ 6\mod_1369643654807_9.docx @ 42575 @ 2222322223233 @ 1
5.12 63BGas saving mode
Pos: 9.25 /0 010 ELTR A/ 0015 s ervic e_i nstr uc tio ns/C S-800_Servic e/00 25 Ser vice/ 0390 M odul Gas saving m ode @ 6\mod_1377688644613_9.docx @ 47287 @ 3333234334 @ 1
NOTICE
This option is functional with EPROMS and PC software versions,
later than June 2001.
If the analyzer has the HF41 board:
Set the jumper setting to A1 with A2 on J2
63
54
72
54
72
63
15
61
58
ø5
ø8
Rubber ring
ø5
ø5
313
Left hand side panel
Inside view
36710
3-20-1
48070
09090

Table of Contents

Related product manuals