EasyManua.ls Logo

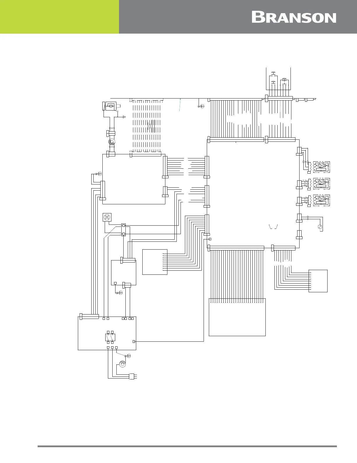
Emerson 2000IW - 2000 IW;IW+ Main Interconnect Schematic; Figure 3.1 2000 IW;IW+ Main Interconnect Schematic

Emerson 2000IW
142 pages
Print Icon
To Next Page IconTo Next Page
To Next Page IconTo Next Page
To Previous Page IconTo Previous Page
To Previous Page IconTo Previous Page
Loading...
1019567 REV. 03 35
3.2 2000IW/IW+ Main Interconnect Schematic
Figure 3.1 2000IW/IW+ Main Interconnect Schematic
5($53$1(/
.(<
1&
3-
9
*1'
9571
9571
$
*1'
9FF
&7(67
&*1'
$
6
%
%


$&&(6625<&$%/(
237,21






3





86(5
,1387 287387
67$57

-
-
6.
6.
9
9
9
&200219
&200219
9
/,1($5( 1&2'(5
.(<3$1(/
83602'8/(
7:2%2$5'6(7
36$&'&
81,99
$66<
',63/$ <
5),/,1(%2$5'
(
(
0(025<&/($5
(;76((.
(;76((.
0(025<6725(
581287
)5(42))6(7
)5(4287
$03/,78'(287
$03/,78'(,1
6((.
0(025<
32:(5
95()
&20021
%51
*51<(/
%/8
%51
%51
%/8
/,1(
+]9
*
5
1
<
(
/
*51<(/
(
(
352*5$00(502'8/(
7:2%2$5'6(7
&21752/ /(5',63/$<
1&
(67239
3%'599
3%,19
3%,19
3%'599
9
(67239
69'59
9
*$6
9
5($'<
:(/'21
9571
5($'<5(/$<
9571
5($'<5(/$<
9571
(;75(6(7
9
*51<(/
*51<(/
3-
3
-
%/.

5('
%/8
(
(
(
(
6((127(
'&
$&
-
3 -
%/.
%/.
%/.
%/.
5('
5('
5('
5('
*51<(/
*1'
/,1(
1(875$/
7%
6.
6.

07:,3(5
581
2/,1387
2/,1'
2/5(6(7
7(67
3:56,*571
3:56,*
9
9

5)287
5)571






*51<(/
(
(
(
(
%
376
73
73
- 3


3
-
3
-
-
3 -
69
- 3
//67568/6
3
3
3
3
3% 3%
3$/0% 8772 167$57
(0(5
6723


































-


-
3
-
















-
3


- 3
3

























3 -







9
2
/
7
5
(
*
9
2
/
7
5
(
*
9
2
/
7
5
(
*



- 3

3 -


(
(
(
&219(57(5
- 3
3 -
3/
3/
9

Table of Contents

Related product manuals