EasyManua.ls Logo

Fronius TPS 4000 - Page 61

Fronius TPS 4000
92 pages
Go to English
To Next Page IconTo Next Page
To Next Page IconTo Next Page
To Previous Page IconTo Previous Page
To Previous Page IconTo Previous Page
Loading...
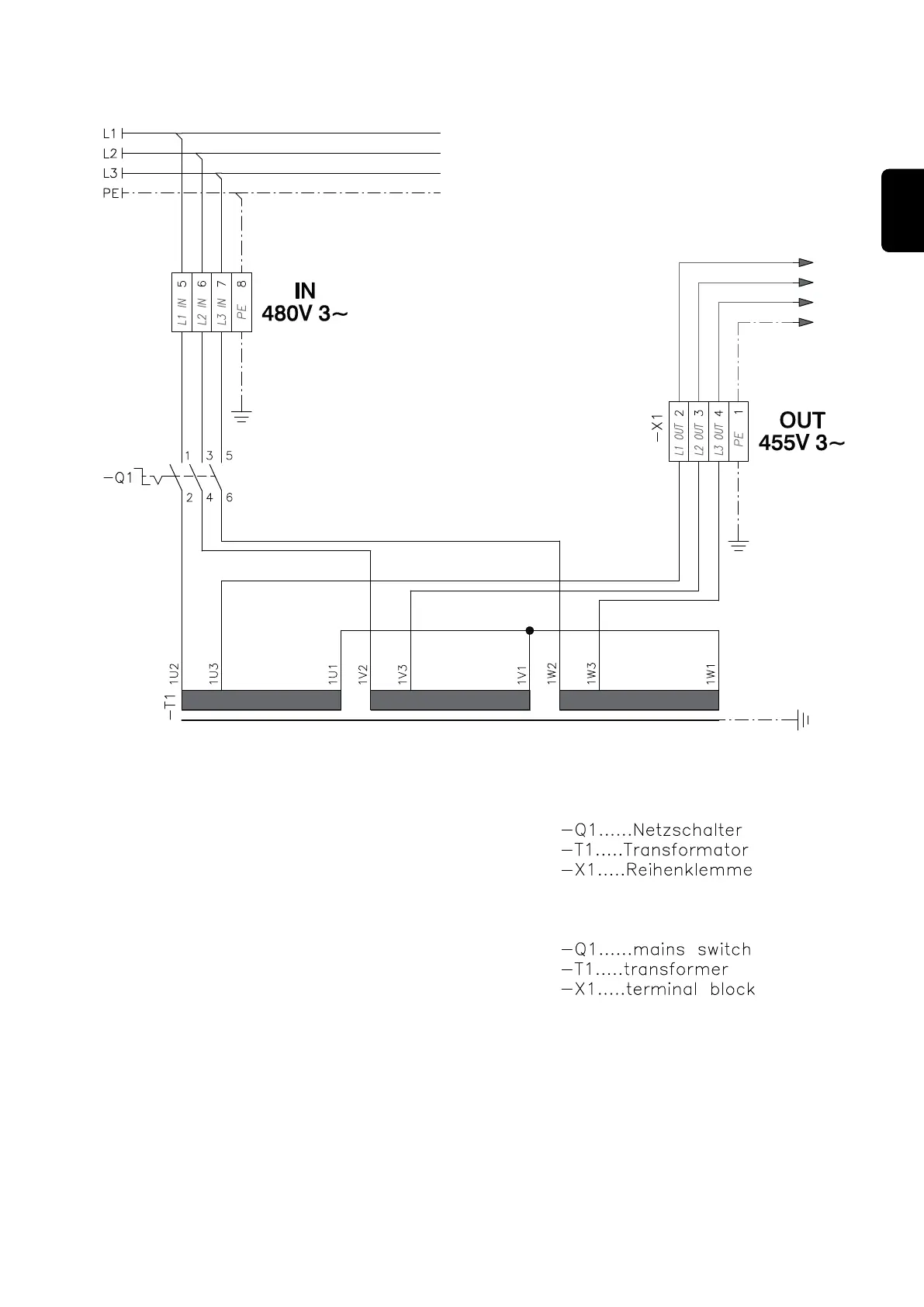
Autotrafo TPS 4000 / 5000 480-455 V
61
EN

Table of Contents

Other manuals for Fronius TPS 4000

Related product manuals