EasyManua.ls Logo

GM V2H Bundle - Page 85

Default Icon
96 pages
Print Icon
To Next Page IconTo Next Page
To Next Page IconTo Next Page
To Previous Page IconTo Previous Page
To Previous Page IconTo Previous Page
Loading...
GM Energy V2H Bundle Installation Manual 85
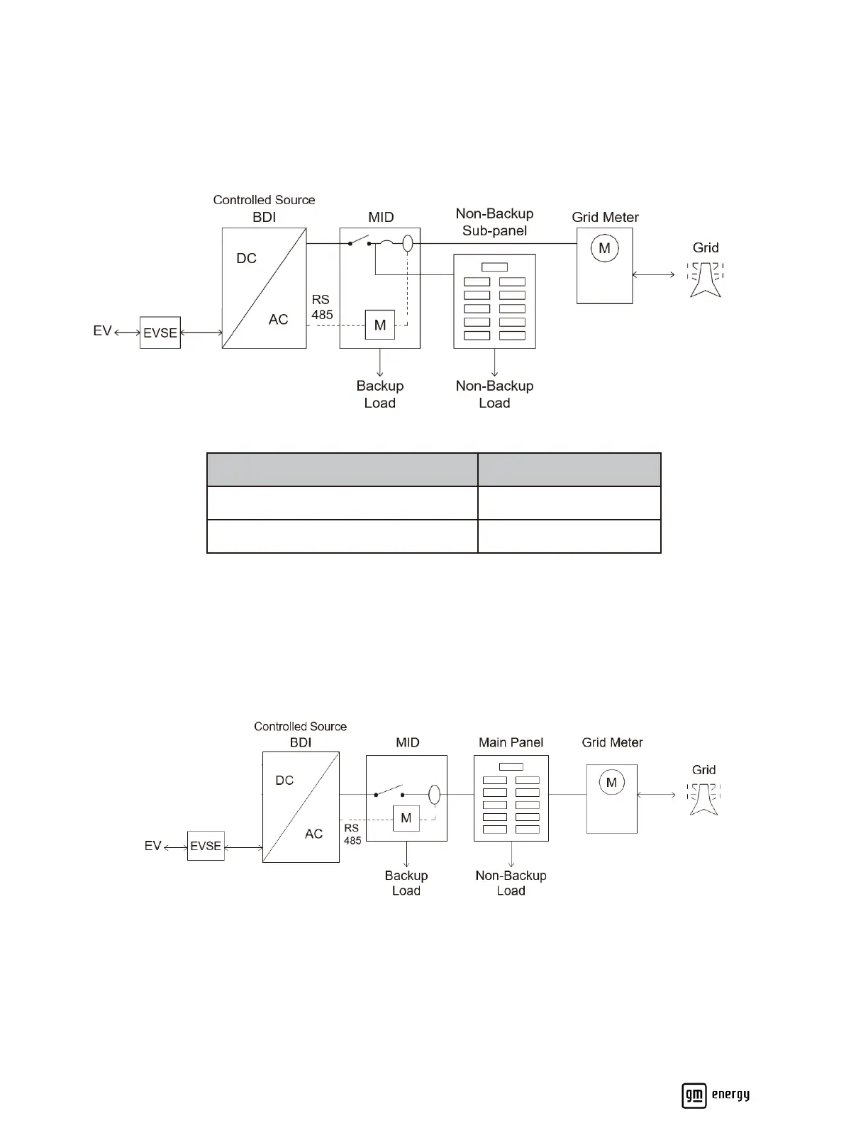
Meter Placed at Service Entrance Whole Home Backup
For whole home backup setup, the CT is left in the factory-installed location in the Hub. Inverter can manage to control the
output power based on the calculation results of the load condition, if it is over 80% of busbar rating. At the moment the
current hits 80% the Inverter stops providing power. The main breaker capacity must be set in the commissioning app properly
for this setup.
Commissioning App Busbar Settings
Input
CT location
CT at Grid Meter
Main breaker capacity
0 - 200 A
Meter Placement on MID Output
When the meter cannot be placed at the grid connection (preferred setup due to customer app displays) the PCS meter can be
put on the output of the MID as an alternative and left in the factory-installed location. An export limit must be calculated and
set in the commissioning app for this setup.

Table of Contents

Other manuals for GM V2H Bundle

Related product manuals