EasyManua.ls Logo

Guldmann GH - GH Horizontal Traverse Drive Motor

Guldmann GH
168 pages
Print Icon
To Next Page IconTo Next Page
To Next Page IconTo Next Page
To Previous Page IconTo Previous Page
To Previous Page IconTo Previous Page
Loading...
+
/
~
-
/
~
I
R
C
o
n
n
.
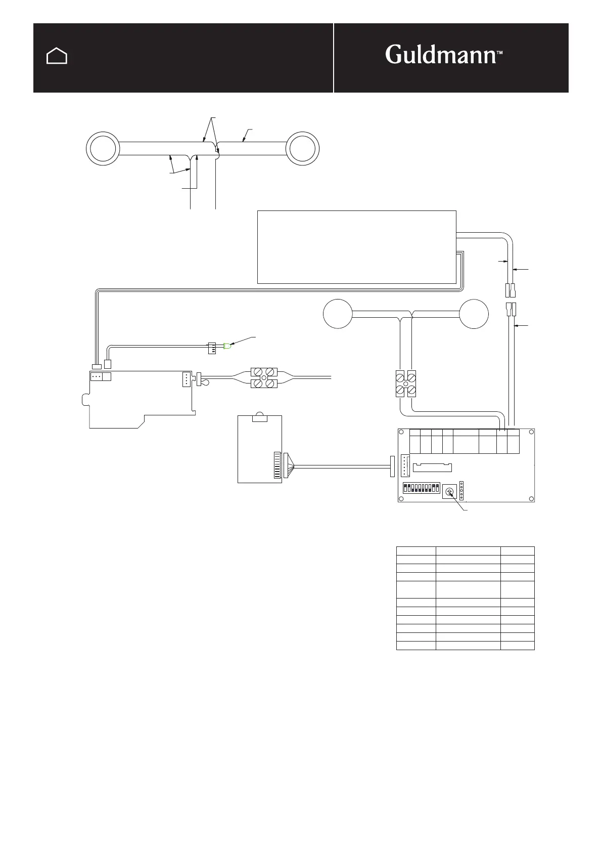
Motor Control
PCB
P/N: 550733
Motor
out
Supply
12
3
4
1 2 3 4 5 6 7 8 9 10
ON
DIP
Battery
Charger
PCB
P/N: 550397
IR Conn.
PCB
P/N: 935024
553948
93950615
Wire no. 932018
Til Pick-up
550870
93950615
To
Motor 1
To
Motor 2
Red wire 932020
Black wire 932025
550514550514
Assem
bly no. 550799
Assembly no. 550798
551061
Red
Blac
k
Black
9395093
Timer setting for timeout
550514550514
To
Motor 1
To
Motor 2
Black wire
Red wire
Red wire
Black wire
DIP switch Function Default
1 Must be On On
2 Must be On On
3 Must be Off Off
4
On = Slow stop
Off = Fast stop
Off
5
Must be Off Off
6 Must be Off Off
7 Must be Off Off
8 Must be Off Off
9 IR Active On
10 IR Active
On
© Guldmann GB/US-09/2016 • #550376_3
159
TECHNICAL DRAWINGS
Electrical diagram
GH Horizontal traverse Drive Motor

Table of Contents

Related product manuals