EasyManua.ls Logo

HPE ProLiant DL380 Gen11

HPE ProLiant DL380 Gen11
262 pages
To Next Page IconTo Next Page
To Next Page IconTo Next Page
To Previous Page IconTo Previous Page
To Previous Page IconTo Previous Page
Loading...
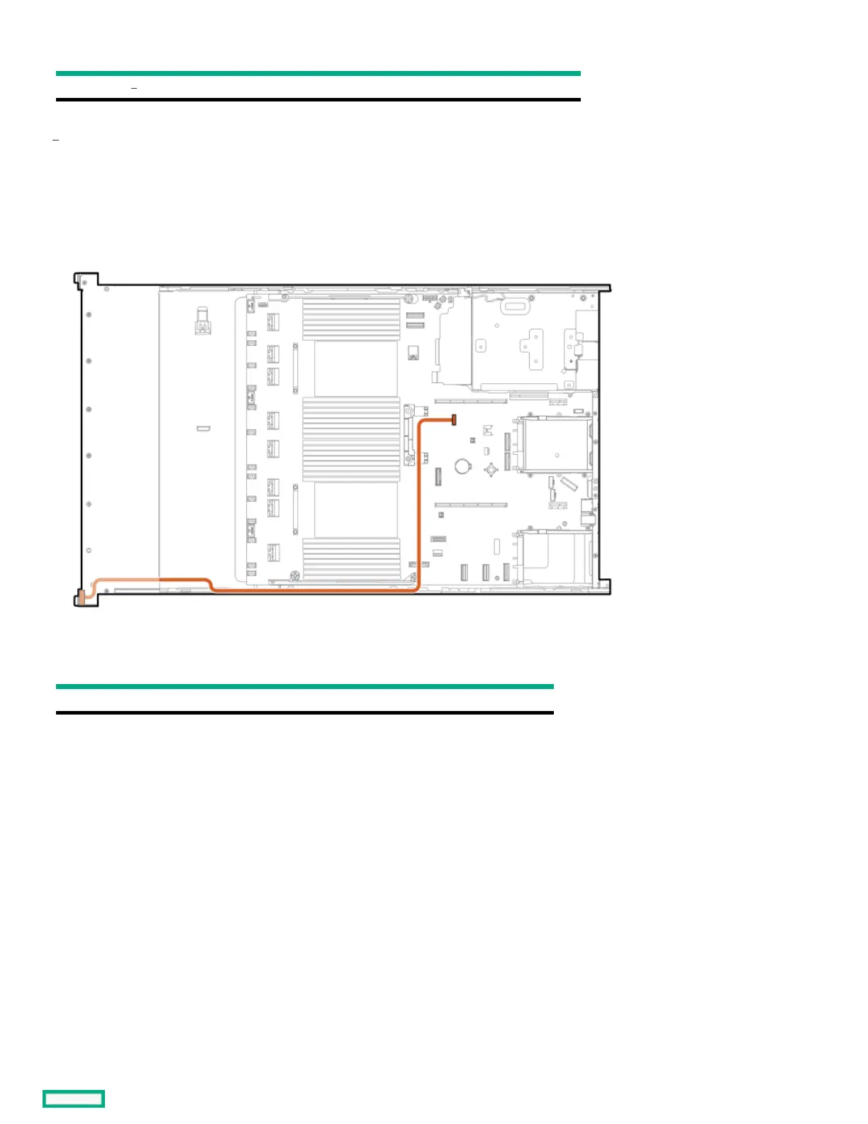
Cable part numberCable part number ColorColor FromFrom ToTo
P14314-001 Orange Universal media bay System board
Option kit: P50728-B21
Front power switch cablingFront power switch cabling
Cable part numberCable part number ColorColor FromFrom ToTo
P43727-001 Orange Front power switch System board
Serial port cablingSerial port cabling
1
1
HPE ProLiant DL380 Gen11 Server Maintenance and Service Guide 225

Table of Contents

Other manuals for HPE ProLiant DL380 Gen11

Related product manuals