EasyManua.ls Logo

JRC JSS-296 - Ncu-692 Pa Rack Installation

JRC JSS-296
220 pages
Print Icon
To Next Page IconTo Next Page
To Next Page IconTo Next Page
To Previous Page IconTo Previous Page
To Previous Page IconTo Previous Page
Loading...
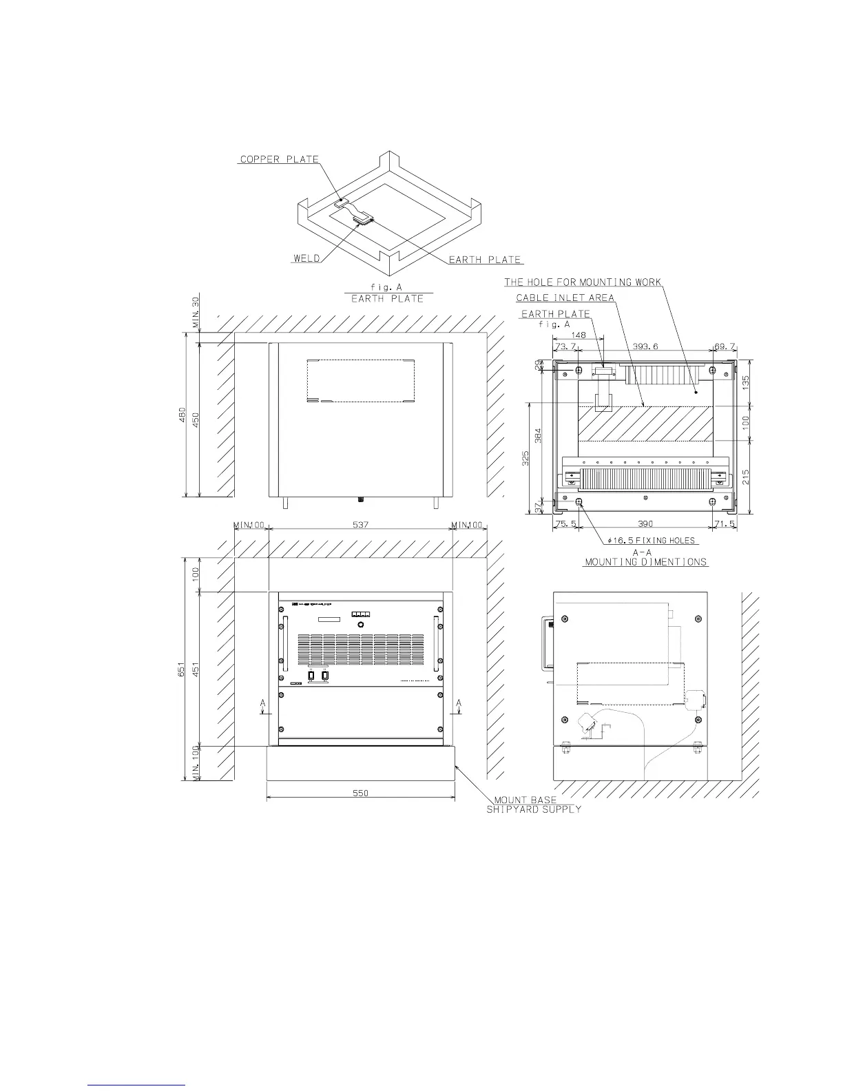
3.3 NCU-692 PA RACK INSTALLATION
Figure 3-6 NCU-692 PA RACK
21

Table of Contents

Other manuals for JRC JSS-296

Related product manuals