EasyManua.ls Logo

LeeBoy 3000C - Engine Cover Assembly

LeeBoy 3000C
238 pages
Print Icon
To Next Page IconTo Next Page
To Next Page IconTo Next Page
To Previous Page IconTo Previous Page
To Previous Page IconTo Previous Page
Loading...
Illustrated Parts List
3000C Force Feed Loader7-76
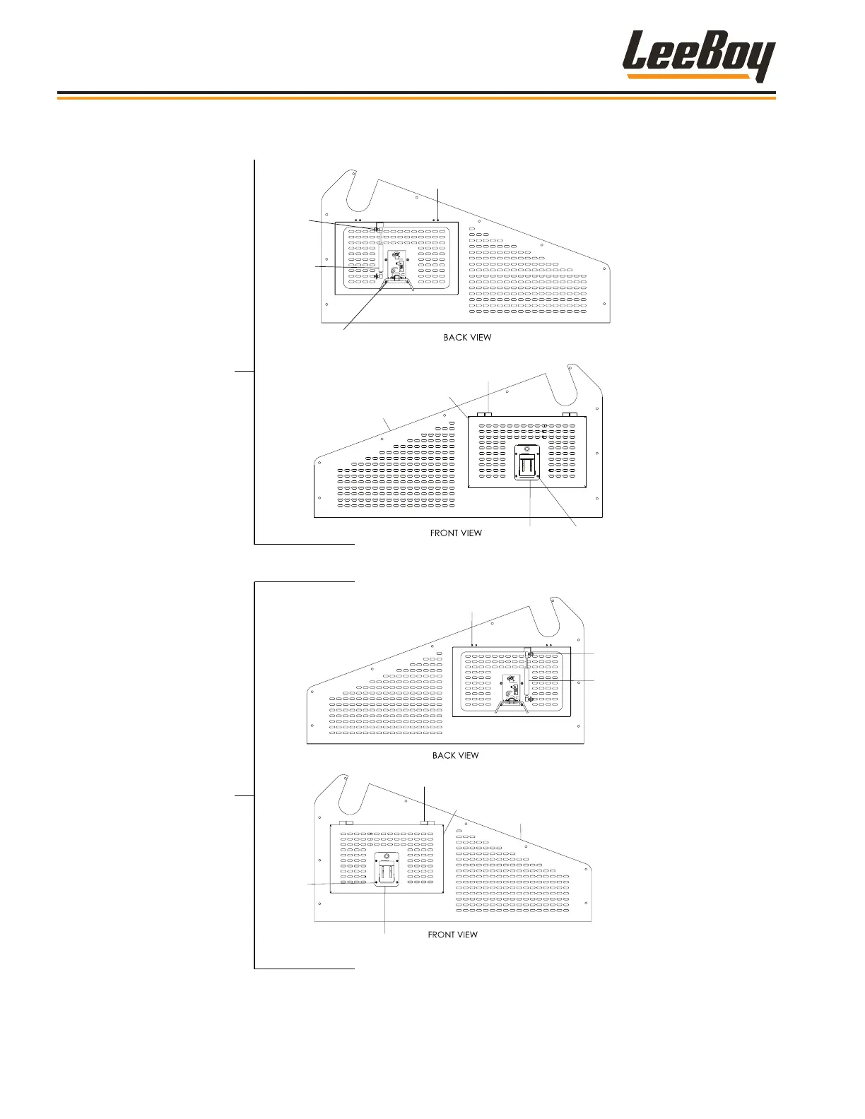
ENGINE COVER ASSEMBLY
Figure 7-35. Engine Cover Assembly
1
2
10
3
6
4
5,7,8
11
9
21
16,19,20
15
21
13
12
17,18
14
Left
Right

Table of Contents