EasyManua.ls Logo

Leibinger Jet 2 - Appendix; Hydraulics Diagram

Leibinger Jet 2
178 pages
Print Icon
To Next Page IconTo Next Page
To Next Page IconTo Next Page
To Previous Page IconTo Previous Page
To Previous Page IconTo Previous Page
Loading...
Group 12 Appendix Page 158
Release 3.00 Leibinger-Jet 2 se
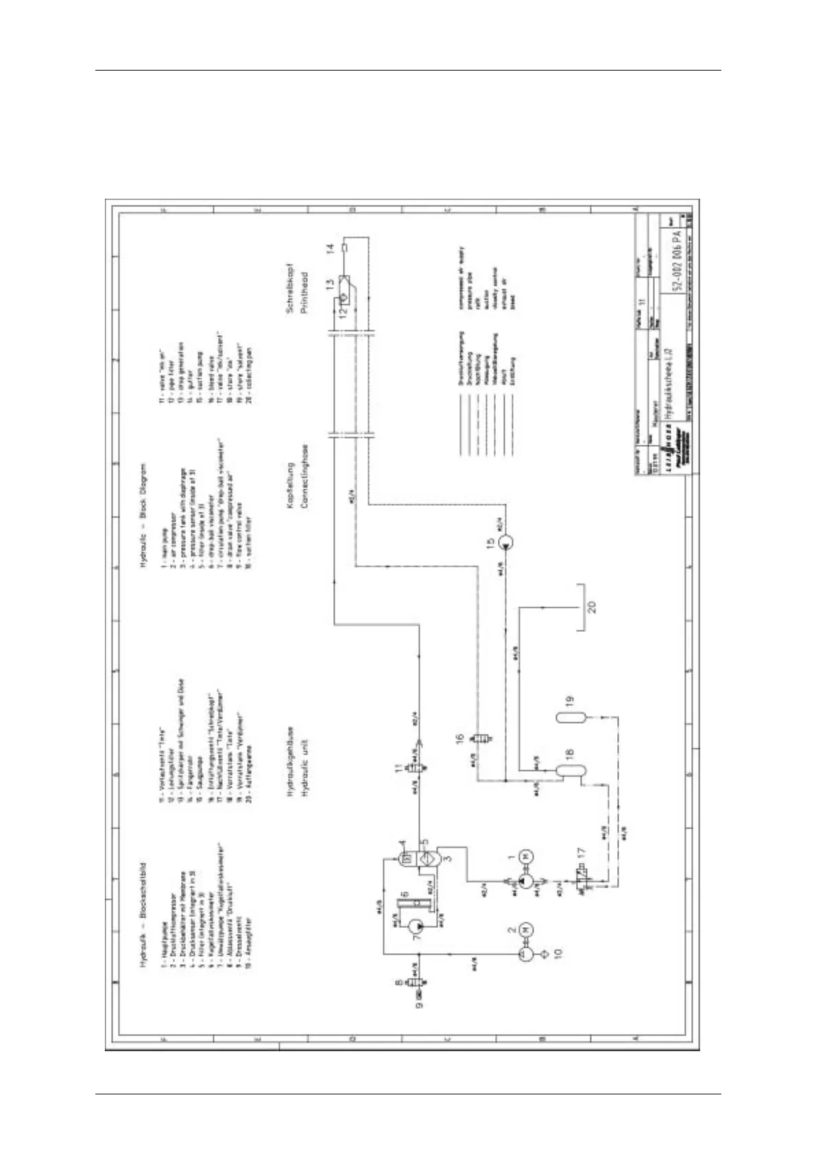
12. Appendix
12.1 Hydraulics diagram (modular mimic display)
Figure 115

Table of Contents

Related product manuals