EasyManua.ls Logo

Leibinger Jet 2 - Drop Production Unit with Oscillator; Deflector Unit

Leibinger Jet 2
178 pages
Print Icon
To Next Page IconTo Next Page
To Next Page IconTo Next Page
To Previous Page IconTo Previous Page
To Previous Page IconTo Previous Page
Loading...
Group 6 Operation – description of the device Page 69
Release 3.00 Leibinger-Jet 2 se
Drop production unit with oscillato
r
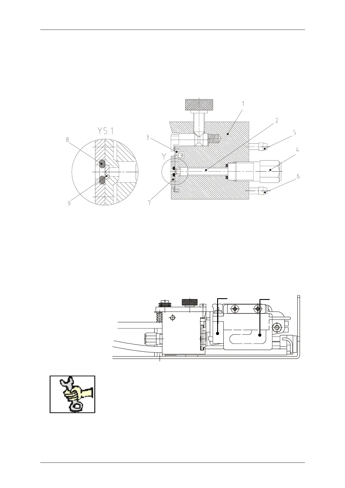
6.5.5.1 Drop production unit with oscillator
Together with the oscillator and the jet the drop production unit creates the ink jet or the
ink drops. The oscillator is built into the drop production with the oscillator cover and
sealed against the ink with an O-ring.
Figure 37
1 – Drop production unit
2 – Oscillator
3 – Nozzle plate
4 – Oscillator cover
5 – Bleeding tube
6 – Ink tube
7 – Clamping plate
8 – Nozzle sealing (O-ring)
9 – Nozzle stone
6.5.5.2 Deflector unit
The deflector unit is made up of the charging electrode and the deflector plate. The
drops are charged with the charging electrode and deflected with the deflector plate.
Figure 38
1 – Charge
electrode
2 – Deflector
plate
Deflector unit
Replacement and changings at the deflector unit!
This work must only be carried out by trained personnel or by
Leibinger service technicians!
1
2

Table of Contents

Related product manuals