EasyManua.ls Logo

Nice NDCC4001 - 2 Installation; Installation Standard; Installation de la Logique de Commande

Nice NDCC4001
220 pages
Print Icon
To Next Page IconTo Next Page
To Next Page IconTo Next Page
To Previous Page IconTo Previous Page
To Previous Page IconTo Previous Page
Loading...
2
FR
2.3 - Installation standard
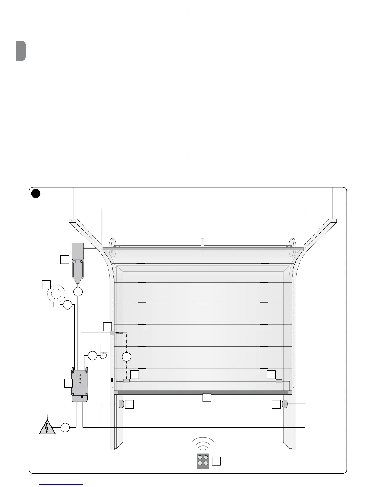
La g. 2 présente un exemple d’installation automatisée réalisée avec
des composants Nice :
1 Motoréducteur
2 Emetteur
3 Bord sensible
4 Boîte de dérivation
5 Logique de commande
6 Câble à spirale
7 Témoin
8 Cellule photoélectrique
9 Clavier numérique - Lecteur avec transpondeur - Sélecteur à clé - Boutons
Ces composants sont positionnés et assemblés selon un schéma typique
et commun. En se référant à la g. 2, établir la position approximative dans
laquelle chaque composant prévu sera installé.
Important – Avant de procéder à l’installation, préparer les câbles électriques
nécessaires à votre installation, en se reportant à la g. 2 et au Tableau 1 -
Caractéristiques techniques des câbles électriques.
Attention ! - Pendant la pose des tubes prévus pour le passage des
câbles électriques et l’entrée des câbles dans le conteneur de la logique de
commande, tenir compte du fait que, en raison des dépôts d’eau dans les
jonctions, les tubes de raccordement peuvent favoriser la condensation dans la
logique de commande. Cette condensation risque d’endommager les circuits
électroniques.
2.4 - Installation de la logique de commande
Pour xer la logique de commande procéder comme suit :
01. Ouvrir le boîtier de la logique de commande : dévisser les vis
conformément à la g. 3-A / g. 3-B;
02. Percer les trous pour le passage des câbles électriques des accessoires de
commande et/ou de signalisation. A cette n et pour garantir le maintien
du niveau de protection IP, il est conseillé d’utiliser un outil adapté (scie-
cloche) et intervenir sur les espaces prévus dans la partie inférieure du
boîtier. Si nécessaire, utiliser les entrées latérales, mais uniquement avec
des raccords adaptés.
03. Fixer le boîtier ; selon les exigences de la zone d’installation, la xation est
possible de trois manières :
a) directement sur la paroi à l’aide des vis se trouvant dans le boîtier (g.
4-A) ;
b) en utilisant les supports fournis (g. 4-B) ;
c) si la goulotte prévue pour le passage des câbles électriques est extérieure,
le boîtier doit être xé à max. 2 cm du mur pour permettre le passage
des câbles de raccordement derrière la logique de commande. DCC se
compose de 4 entretoises et d’une protection pour l’entrée des câbles dans
le boîtier de la logique de commande. Pour réaliser l’installation à l’aide de
l’accessoire, consulter la g. 4-C.
04. A ce stade, vous pouvez effectuer les raccordements électriques. V. chapitre 3.
Pour installer les autres appareils composant l’automate, consulter les manuels
correspondants.
C
A
F
E
B
9
6
5
8
2
3
8
44
7
1
2

Table of Contents

Related product manuals