EasyManua.ls Logo

Powerware 9330 - Page 259

Powerware 9330
268 pages
Print Icon
To Next Page IconTo Next Page
To Next Page IconTo Next Page
To Previous Page IconTo Previous Page
To Previous Page IconTo Previous Page
Loading...
A --- 8 5
Powerware 9330 (10 kVA--40 kVA) Installation and Operation
164201300 Rev . N 013004
DESCRIPTION:
DATE:
DRAWING NO: SHEET:
REVI SION:
D
2of2
053001
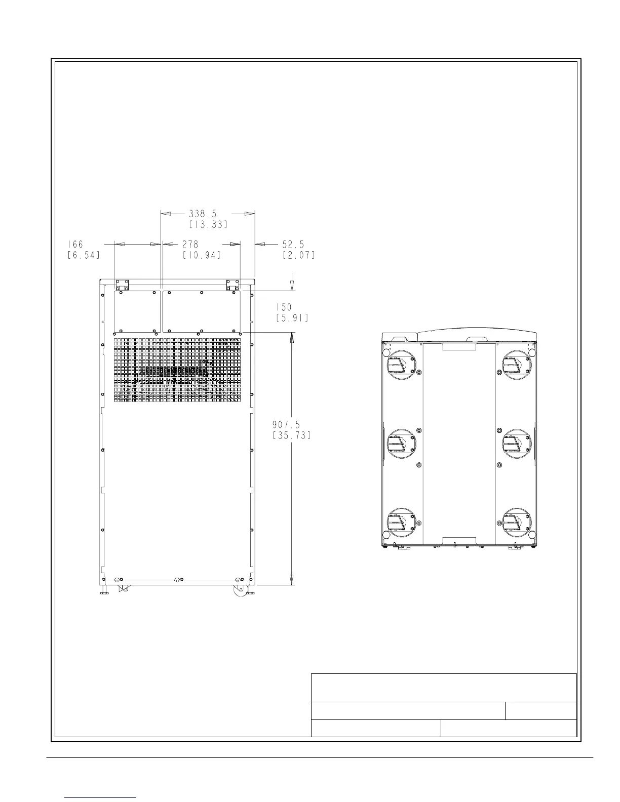
OPTIONS CABINET DIMENSIONS
Dimensions are in millimeters and [inches]
OPTIONS CABINET
POWERWARE 9330 (25 kVA-- 40 kVA)
164201300---16

Table of Contents

Other manuals for Powerware 9330

Related product manuals