EasyManua.ls Logo

Powerware 9330 - Page 96

Powerware 9330
268 pages
Print Icon
To Next Page IconTo Next Page
To Next Page IconTo Next Page
To Previous Page IconTo Previous Page
To Previous Page IconTo Previous Page
Loading...
8-- 2
Powerware 9330 (10 kVA--40 kVA) Installation and Operation
164201300 Rev . N 013004
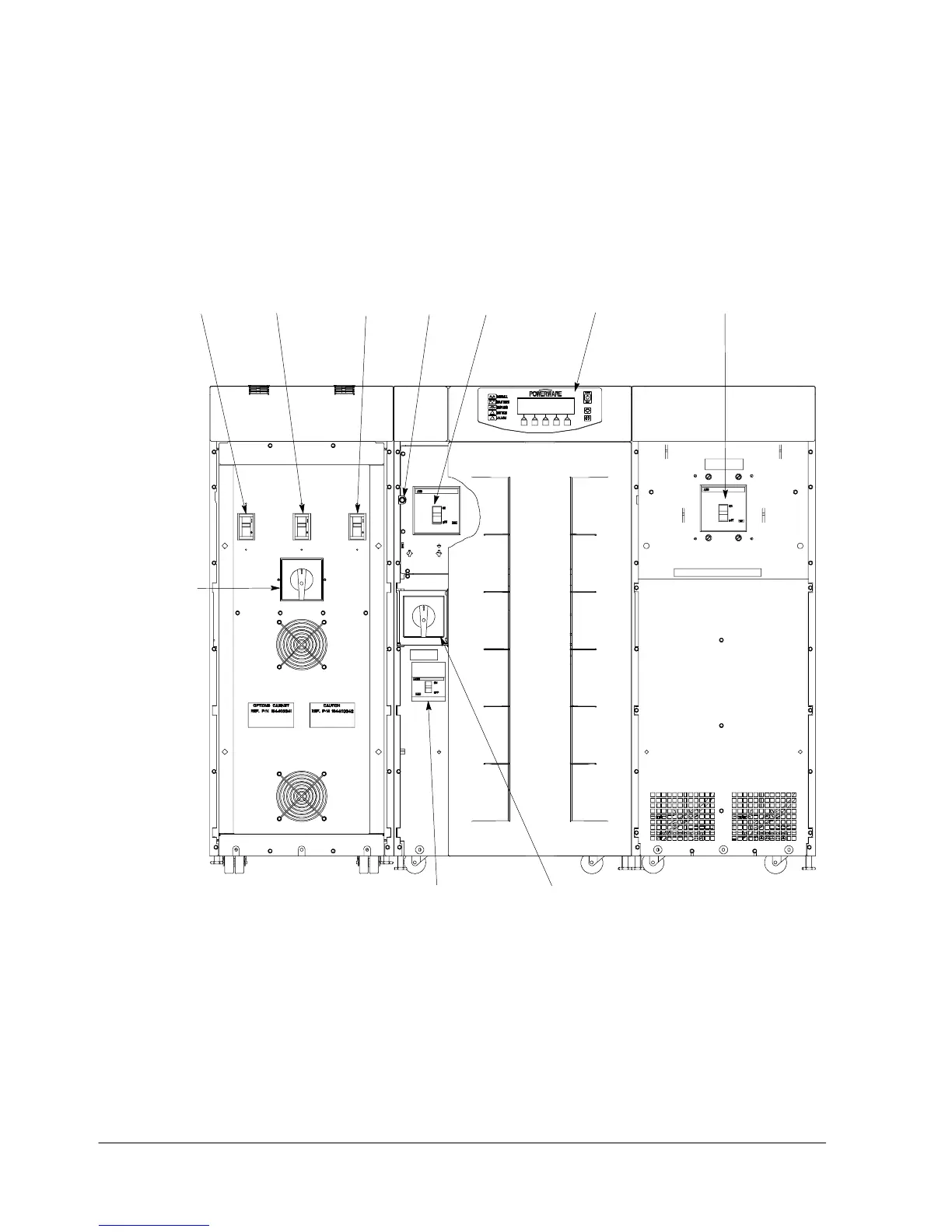
CONTROL
PANEL
AC INPUT
BREAKER
BATTERY
BREAKER CB2
BYPASS
BREAKER
BATTERY
BREAKER
MAINTENANCE
BYPASS
OPTIONS
CABINET
SWITCH
BATTERY
CABINET
UPS
CABINET
OPTIONS
CABINET
AC OUTPUT
BREAKER
AC INPUT
BREAKER CB1
UPS
MAINTENANCE
BYPASS SWITCH
COLD
START
SWITCH
Figure 8---1. Powerware 9330 (10 kVA ---20 kVA) UPS Controls and Indicators

Table of Contents

Other manuals for Powerware 9330

Related product manuals