EasyManua.ls Logo

Schwarze Industries Hypervac - Sk-2428 - #4 Console Cpu Box Wiring

Schwarze Industries Hypervac
113 pages
Print Icon
To Next Page IconTo Next Page
To Next Page IconTo Next Page
To Previous Page IconTo Previous Page
To Previous Page IconTo Previous Page
Loading...
Section 6 - Service
98 SCHWARZE HYPERVAC HV-18 revised 11/18
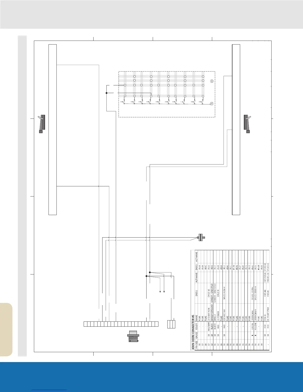
SK-2428 - #4 CONSOLE CPU BOX WIRING
This D rawing is the prop erty of
SCHWARZE IN DUSTRIES INC. T his
documen t will no t be disc losed, co pied,
distrib uted without expressed written
co nse nt from S CHW ARZ E INDUST RIE S
INC.
Drawn by RAG
RAG
SCHWARZE INDUSTRIES INC.
#5 JOHN DEERE ENGINE CPU BOX WIRING
SI ZE FSCM NO DWG NO REV
C SK-2428 B
SCA L E
NONE
SH EE T
9 OF 14
D
C
B
A
4 3 2 1
D
C
B
A
4 3 2 1
#5
HDP24-24-21PN
JOHN DEERE ENGINE
CPU 2
1
2
3
4
5
6
7
8
9
10
11
12
13
14
15
16
17
18
19
20
21
22
23
24
25
26
27
28
29
30
31
32
33
34
35
36
37
38
39
40
41
42
43
44
45
46
47
48
49
50
51
52
53
54
55
CPU 1
1
2
3
4
5
6
7
8
9
10
11
12
13
14
15
16
17
18
19
20
21
22
23
24
25
26
27
28
29
30
31
32
33
34
35
36
37
38
39
40
41
42
43
44
45
46
47
48
49
50
51
52
53
54
55
#5
A
B
C
D
E
F
G
H
J
K
L
M
N
P
R
S
T
U
V
W
X
JD STA RT RU N
18 RED/WHI TE
SENSOR GROUND
18 BLAC K
SH IEL D
18 BLAC K
JD POWE R
18 RED
GROUND
FEED TH R U
1" X 3/8"
SP LIC E J1939-HIGH
SP LIC E J1939-LOW
J1939 CAN LOW
18 GREEN (J1939/11 CABLE)
J1939 CAN H IGH
18 YEL LOW (J19 39/11 CABLE )
CPU 2
CPU 1
J1939 CAN LOW
18 GREEN (J1939/11 CABLE)
J1939 CAN H IGH
18 YEL LOW (J19 39/11 CABLE)
SEE #4 CONSOLE WIRING
}
RES 2
1
2
J1939 CAN H IGH
18 YEL LOW (J19 39/11 CABLE )
J1939 CAN LOW
18 GREEN (J1939/11 CABLE )
SERVICE US E O NLY
R1
R2
R3
R4
R5
WTR
PUMP #1
12V OPTIO N
POWER
(ARROW)
SHAKER
POWER
12V
EXCITER
OPTION POWER
#1, #3
DUST
STRIPPER
EXPAN
MOD PWR
CONSOLE
POWER
12V
SENSOR
POWER
BOOM
POWER
F1
F2
F3
F4
F5
F6
F7
F8
F9
F10
FB2 12V FB2 GND
8787a85
30
8787a85
30
8787a85
30
8787a85
30
8787a85
30
A
B C D
1
2
3
4
5
6
7
8
9
10
L2L1
12V EXC ITER
18 RED
STANDARD SIDE (ST)
A INITIAL RELEASE 9/27/17 RAG
REV DESCRIPTION DATE BY
B
CIRCUIT12V EXCITER END 1 WAS AT FB2-A4. ADDED CIRCUITS FUSE 4 AND “DC
PUMP PWR.
4/4/18 RAG
SPLICE FUSE 4
FUSE 4
18 RED
DC PUMP PWR
18 RED

Table of Contents