EasyManua.ls Logo

Servomex SERVOPRO Plasma - 4.2 Electrical Installation; 4.2.1 Electrical Safety

Servomex SERVOPRO Plasma
82 pages
Print Icon
To Next Page IconTo Next Page
To Next Page IconTo Next Page
To Previous Page IconTo Previous Page
To Previous Page IconTo Previous Page
Loading...
Plasma Gas Analyzer
15 02001001A_9
4.1 Mechanical installation rack mounting
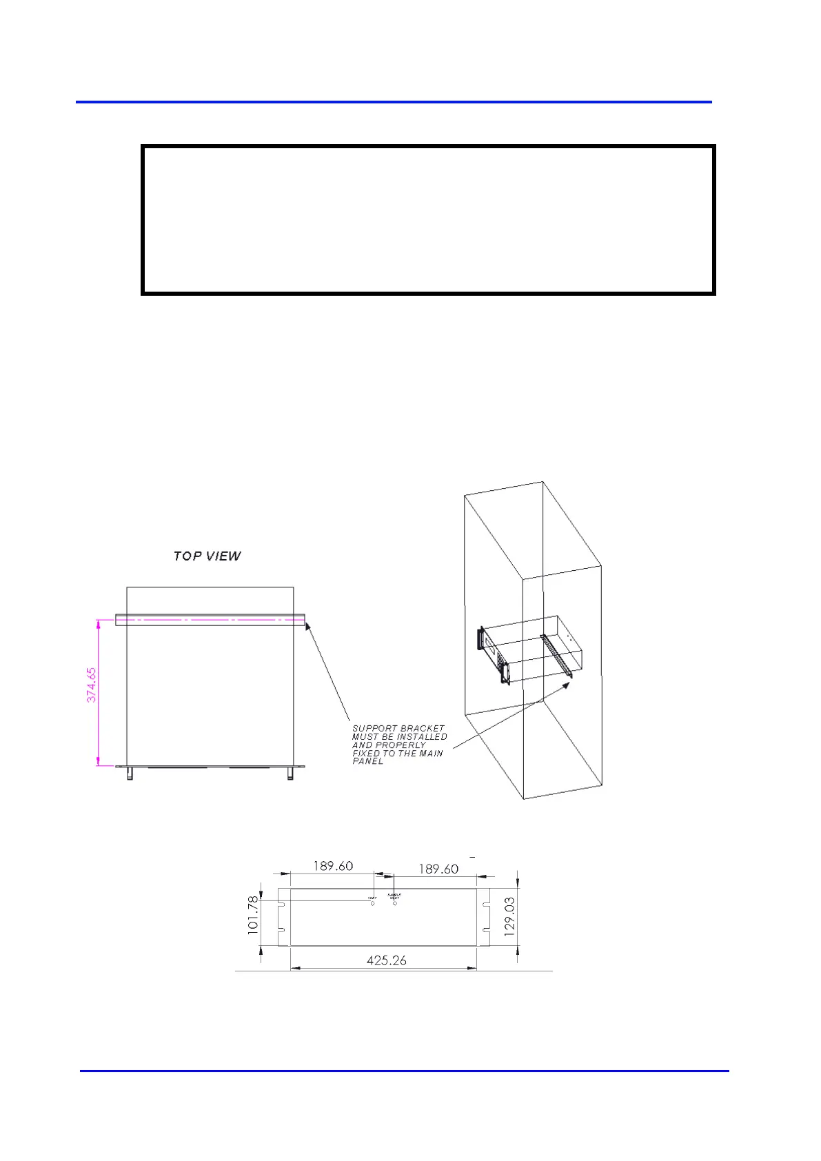
CAUTION
The analyzer must not be supported by the front panel alone. You must provide an
additional support under the base of the analyzer towards the rear of the enclosure
as shown in Figure 5 - INSTALL THE 02001 ANALYZER IN A PANEL.
If you do not, the analyzer may be damaged, or may fall and damage other
equipment.
Refer to Figure 5 and Figure 6
Prepare a cut-out in a suitable panel capable of supporting 15kg.
Prepare a suitable base support and secure it in your frame or cabinet capable of supporting
15kg.
Fit the analyzer in the panel and use nuts and bolts through the fixing holes in the panel and the
mounting brackets to secure the analyzer in place.
Figure 5 - INSTALL THE 02001 ANALYZER IN A PANEL
Figure 6 - REAR VIEW CUT OUT DIMENSIONS

Table of Contents

Related product manuals