EasyManua.ls Logo

Sony DCR-VX2000 - Key In;Connector

Sony DCR-VX2000
222 pages
Print Icon
To Next Page IconTo Next Page
To Next Page IconTo Next Page
To Previous Page IconTo Previous Page
To Previous Page IconTo Previous Page
Loading...
DCR-VX2000/VX2000E
4-73 4-74
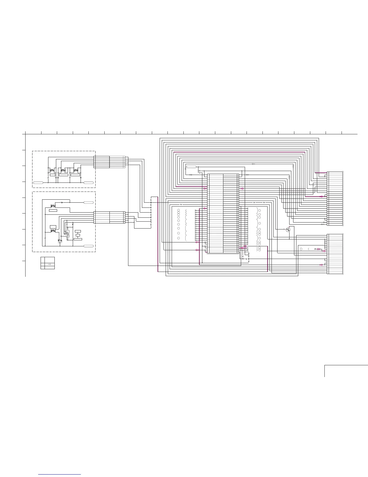
For Schematic Diagram
• Refer to page 4-67 for printed wiring board.
KEY IN/CONNECTOR
LA-026 (3/3)
0
NO MARK:REC/PB MODE
R :REC MODE
P :PB MODE
0
27PCN053
1
2
3
4
5
6
7
8
9
10
11
12
13
14
15
16
17
18
19
20
21
22
23
24
25
26
27
R050
XX
R051
1200
R052
1500
R053
3300
R054
6800
R055
22k
Q050
UN9211J-(K8).SO
DIR_0B
REG_GND
DIR_1B
FC_RST_SENS
MZ_A
VP_TEMP
P_OUT
VP_LOCK_SENS
DIR_1A
P_PWM
TEMP_OUT
IRIS_OFFSET
IRIS_PWM
IRIS_GAIN
PS_OUT
EN1
ND_SW1
DIR_0A
ZM_RST_SENS
YS_OUT
MZ_B
Y_PWM
ND_SW2
C_RST
EN0
ND_MZ_LED
80PCN051
1
3
5
7
9
11
13
15
17
19
21
23
25
27
29
31
33
35
37
39
41
43
45
47
49
51
53
55
57
59
61
63
65
67
69
71
73
75
77
79
2
4
6
8
10
12
14
16
18
20
22
24
26
28
30
32
34
36
38
40
42
44
46
48
50
52
54
56
58
60
62
64
66
68
70
72
74
76
78
80
HALL_AD
VAP_DD_ON
MF_LED
ZM_FC_LED
MF_B
Y_OUT
VP_LOCK_DR
A_4.6V
ND_SW3
IRIS_COM
MF_A
6PCN055
1
2
3
4
5
6
6P
CN054
1
2
3
4
5
6
LND051
CH.GND
2012
1/10W
R056
XX
2012
1/10W
R057
XX
1/10W
0
R058
20PCN056
1 DIAL_A
2 EXECUTE
3GND
4GND
5GND
6 DIAL_B
7GND
8GND
9 D_2.8V
10 KEY_AD3
11 XACCESS_LED
12 N.C
13 GND
14 GND
15 VCC
16 VCC
17 BS
18 DIO
19 MS_IN
20 SCLK
2012
XX
R061
2012
XX
R062
0
R063
XX
R064
0
R065
0
R066
0
R067
D_2.8V
1
2
3
4
5
6
1
2
3
4
5
6
D575
MA8082-(K8).SO
D576
MA8082-(K8).SO
D577
MA8082-(K8).SO
R575
XX
R576
XX
LND576
CH.GND
LND575
CH.GND
LND550
CH.GND
D550
MA8082-(K8).SO
S550
LND551
CH.GND
R551
XX
S551
D551
018ZA8.2(TE85L)
S552
D552
MA8082-(K8).SO
R552
XX
1
A
LOW_CUT_ON_CH2
XCUSTOM_PRESET
SIRCS_SEL1
SIRCS_SIG
SIRCS_PWM
LANC_SIG
SIRCS_SEL2
EXT_MIC_MONO
EXT_MIC_DET
R(CH2)IN
SHOE_UNREG
AU_4.6V
REG_GND
L(CH1)IN
TALLY_LED
F_TALLY_LED
REG_GND
SHOE_ID2
ZOOM_MIC_CONT
AU_2.8V
SHOE_UNREG
MT_GND
LOW_CUT_ON_CH2
REG_GND
DIR_1B
MF_B
MF_LED
MS_IN
REG_GND
MT_GND
REG_GND
ND_MZ_LED
HALL_AD
SCLK
P_OUT
DIR_0B
IRIS_PWM
CTRL_A
R(CH2)IN
SIRCS_PWM
IRIS_OFFSET
REG_GND
Y_PWM
D_2.8V
P_PWM
SIRCS_SEL1
VP_LOCK_DR
AU_4.6V
VAP_DD_ON
ND_SW2
VCC
SIRCS_SEL2
SHOE_UNREG
ND_SW3
ZM_FC_LED
A_4.6V
REG_GND
MT_5.2V
ZM_RST_SENS
EN1
EXT_MIC_MONO
MT_GND
IRIS_COM
AU_2.8V
DIO
MS_LED_ON
XCUSTOM_PRESET
MF_A
MT_5.2V
ZOOM_MIC_CONT
BS
LANC_SIG
SIRCS_SIG
VP_TEMP
TEMP_OUT
SHOE_UNREG
DIR_0A
TALLY_LED
EXECUTE(DIAL)
F_TALLY_LED
L(CH1)IN
LOW_CUT_ON_CH1
D_3.1V
SHOE_ID2
MZ_A
EXT_MIC_DET
SHOE_ID1
KEY_AD3
DIR_1A
VP_LOCK_SENS
PS_OUT
ND_SW1
YS_OUT Y_OUT
FC_RST_SENS
KEY_AD2
D_3.1V
C_RST
IRIS_GAIN
EN0
MZ_B
CTRL_B
LOW_CUT_ON_CH1
SHOE_ID1
MT_GND
MT_5.2V
D_3.1V
GND
GND
N.C.
FADER
BACK_LIGHT
SPOT_LIGHT
PUSH_AUTO
GND
GND
INDEX
INFINITY
AUTO
TO
FK-076 BOARD
CN501
(SEE PAGE
4-85)
TO
KP-010 BOARD
CN550
(SEE PAGE
4-81)
TO
MK-014 BOARD
CN001
(SEE PAGE
4-81)
(SEE PAGE
4-81)
TO
MS-049 BOARD
CN775
16
18
TO(2/3)
TO(2/3)
16
TO(2/3)
17
TO(1/3)
11
19
TO(2/3)
13
TO(1/3)
20
TO(2/3)
TO(1/3)
15
9
TO(1/3)
TO(1/3)
8
27
TO(2/3)
29
TO(1/3,2/3)
26
TO(2/3)
25
TO(1/3)
10
TO(1/3)
TO(2/3)
24
12
TO(1/3)
TO(2/3)
23
21
TO(1/3)
TO(1/3)
22
14
TO(1/3)
TO VC-242 BOARD(18/18)
CN023
(THROUGH THE FP-186 FLEXIBLE)
(SEE PAGE 4-50)
7
TO(1/3)
AUTO
GND
GND
PUSH_AUTO
N.C.
GND
FADER
GND
BACK_LIGHT
INDEX
SPOT_LIGHT
INFINITY
FP-189 FLEXIBLE
FADER BACK LIGHT SPOT LIGHT
FP-188 FLEXIBLE
B
16
H
19154
E
10 12 13 209 17
D
11
C
14 2173
I
26 185
F
8
G
XX MARK:NO MOUNT
SIGNAL
PB
AUDIO
LA-026 BOARD(3/3)
KEY IN/CONNECTOR
REC
SIGNAL PATH
-REF.NO.:20000 SERIES-
INDEX MARK
PUSH
AUTO
AUTO
INFINITY
MAN LED DRIVE
S501 S502
S503

Table of Contents

Other manuals for Sony DCR-VX2000

Related product manuals