EasyManua.ls Logo

Sony HDCE-TX30 - Page 66

Sony HDCE-TX30
99 pages
Print Icon
To Next Page IconTo Next Page
To Next Page IconTo Next Page
To Previous Page IconTo Previous Page
To Previous Page IconTo Previous Page
Loading...
62
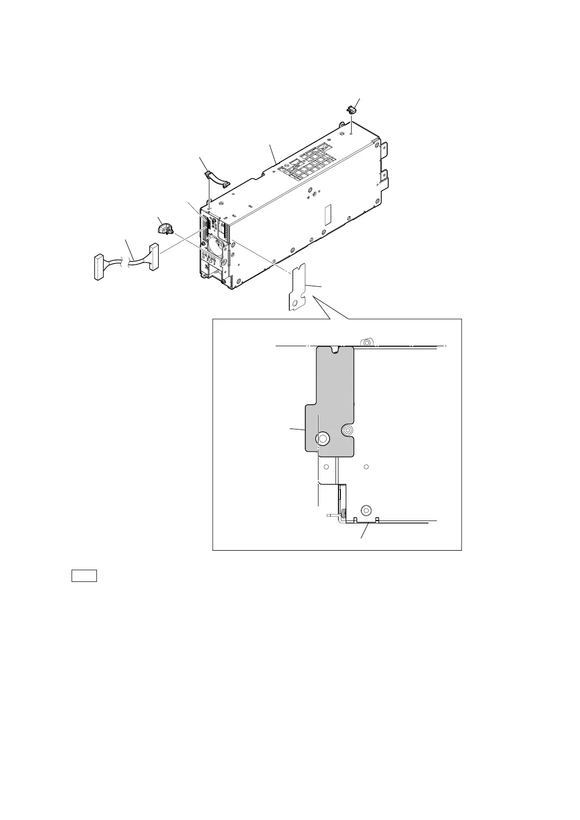
6. Disconnect the harness from the connector (CN5003) on the RE-345 board.
7. Remove the clamp, the two cable clamps and the power duct sheet.
Tip
When replacing the power block, attach new power duct sheet at the positions shown above.
8. Install the removed parts by reversing the steps of removal.
Power block
Cable clamp
Cable clamp
CN5003
(RE-345 board)
Clamp
Harness
Power duct sheet
Plate
Attaching position of the power duct sheet
Power duct sheet

Table of Contents

Related product manuals