EasyManua.ls Logo

Sony KDF-E50A10 - 4 Hpc Board; Schematic Diagram; HPC Board (Side A, Side B)

Sony KDF-E50A10
241 pages
Print Icon
To Next Page IconTo Next Page
To Next Page IconTo Next Page
To Previous Page IconTo Previous Page
To Previous Page IconTo Previous Page
Loading...
– 23 –
KDF-E42A10/E50A10
K RM-YD003 RM-YD003
123456
7
891011 12
A
B
C
D
E
F
G
H
I
J
1
2
3
4
5
L
GND
R
GND
SW_5V
8765
4321
E0
E1
E2
VSS SDA
SCL
WC
VCC
3
1
2
3
4
5
6
7
8
9
10
PC_V
GND
PC_H
GND
PC_B
GND
PC_G
GND
PC_R
GND
1
2
3
R
L
V
H
B
G
R
HPC BOARD (PHONES)
5P
CN8101
M24C02-WMN6T(B)
IC8100
CN8102
BLK
15P
UDZSTE-1710B
D8100
UDZSTE-1710B
D8101
GND_1
D8102
MA151WK-TX
GND_1
GND_1
GND_1
GND_1
XX
C8102
XX
C8103
GND_1
FB8100
0uH
FB8101
0uH
FB8102
0uH
FB8103
0uH
GND_1
SW_5V
SW_5V
JL8100
JL8101
JL8102
JL8103
JL8104
JL8105
JL8106
JIG25
JL8107
JL8108
JL8113
GND_1
PS8100
0.4A
GND_1
D8104
HZU5.6GTRF
D8105
HZU5.6GTRF
D8103
HZU5.6GTRF
VD8100
XX
VD8101
XX
VD8102
XX
VD8103
XX
VD8104
XX
GND_1
10P
CN8100
JL8115
J8100
XX
R8128
1/10W
RN-CP
47
R8115
1608
16V
0.1
B
C8101
XX
R8125
1/10W
RN-CP
330k
R8122
1/10W
10k
R8109
CHIP
0
R8102
2012
16V
1
B
C8105
XX
R8127
CHIP
0
R8117
1/10W
RN-CP
R8105
100k
CHIP
0
R8103
CHIP
0
R8116
CHIP
0
R8100
1/10W
RN-CP
330k
R8121
XX
R8126
CHIP
0
R8118
XX
R8111
CHIP
0
R8104
1/10W
47
R8112
1608
16V
0.1
B
C8100
CHIP
0
R8120
CHIP
0
R8101
1/10W
RN-CP
1k
R8107
1/10W
RN-CP
47
R8113
XX
R8124
1/10W
RN-CP
47
R8114
2012
16V
1
B
C8104
XX
R8106
CHIP
0
R8119
XX
R8110
1/10W
RN-CP
10k
R8108
XX
R8123
SDA
SCL
RN-CP
RN-CP
1
2
6
7
8
910
11
12
13
14
15
4
5
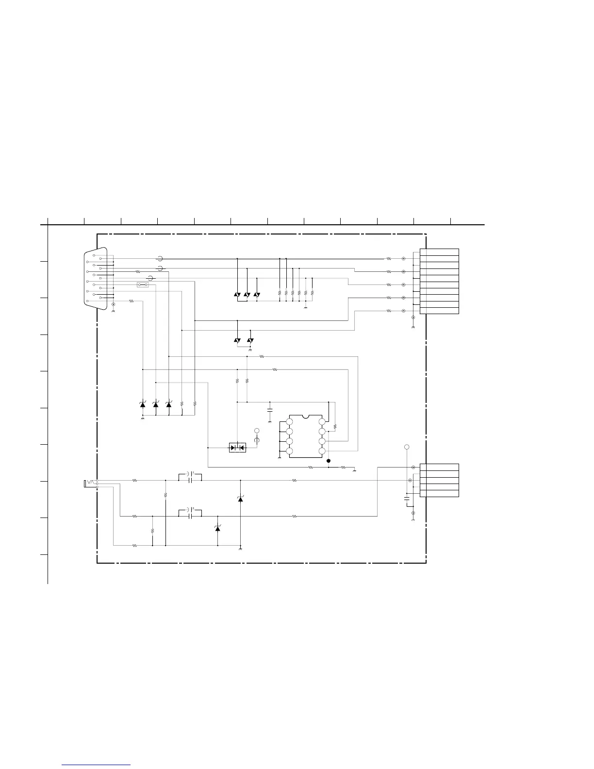
4-1. Schematic Diagram
HPC Board
4. HPC BOARD

Table of Contents

Related product manuals