EasyManua.ls Logo

Vertiv SmartCabinet - Page 32

Vertiv SmartCabinet
160 pages
Print Icon
To Next Page IconTo Next Page
To Next Page IconTo Next Page
To Previous Page IconTo Previous Page
To Previous Page IconTo Previous Page
Loading...
Vertiv | SmartCabinet | User Manual 23
System Installation
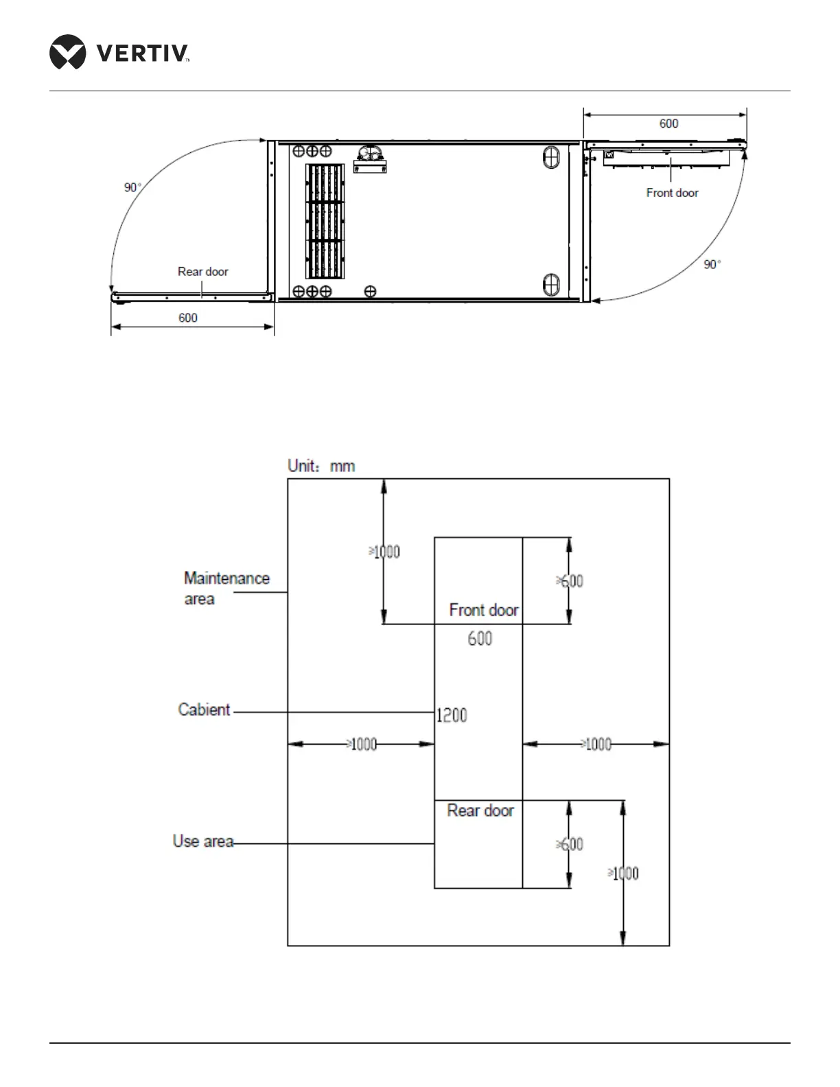
Figure 2-12 Required clearance for opening the front and rear door (Top view, unit: mm)
Following are the space requirements for the 600mm wide standard unit (Refer Figure 2-13):
Figure 2-13 Space requirements of the 600mm wide standard unit

Table of Contents

Related product manuals