EasyManua.ls Logo

Vertiv SmartCabinet - Page 54

Vertiv SmartCabinet
160 pages
Print Icon
To Next Page IconTo Next Page
To Next Page IconTo Next Page
To Previous Page IconTo Previous Page
To Previous Page IconTo Previous Page
Loading...
Vertiv | SmartCabinet | User Manual 45
System Installation
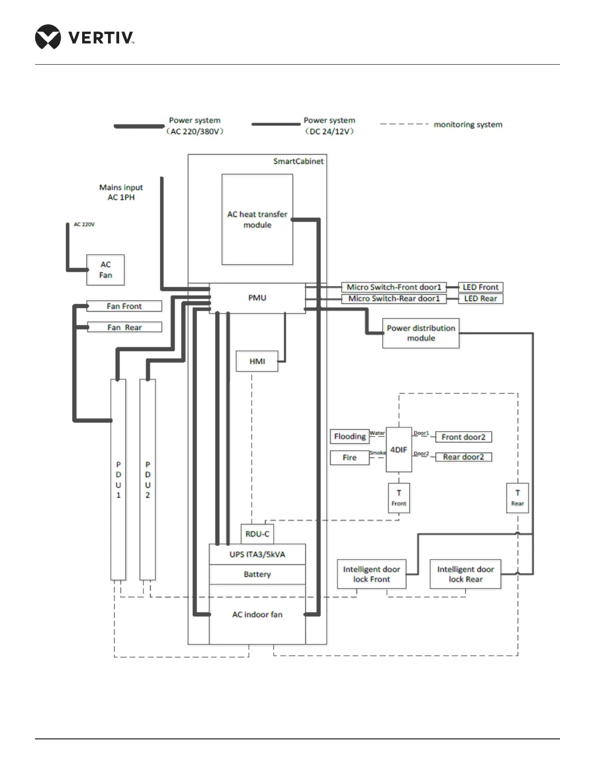
Figure 2-35 shows the system wiring schematic diagram:
Figure 2-35 Complete System Wiring diagram

Table of Contents

Related product manuals