EasyManua.ls Logo

YASKAWA MP2300 - Data Types and Register Specifications

YASKAWA MP2300
267 pages
Print Icon
To Next Page IconTo Next Page
To Next Page IconTo Next Page
To Previous Page IconTo Previous Page
To Previous Page IconTo Previous Page
Loading...
5
Outline of Motion Control Systems
5.3.2
Data Types and Register Specifications
5-24
5.3.2 Data Types and Register Specifications
There are five kinds of data: Bit, integer, double-length integer, real number, and address data. Each is used differently
depending on the application. Address data, however, is used only inside functions when specifying pointers. The
following table shows the types of data.
Type Data types Numeric Value Range Remarks
B Bit
0
1
Used by relay circuits.
W Integer
32768 to +32767
(8000H) (7FFFH)
Used for numeric value operations. The values in
parentheses ( ) indicate use with logical operations.
L
Double-length
integer
2147483648 to +2147483647
(80000000H) (7FFFFFFFH)
Used for numeric value operations. The values in
parentheses ( ) are for use with logical operations.
F Real number
±
(1.175E-38 to 3.402E+38), 0
Used for numeric value operations.
A Address 0 to 32767 Used only when specifying pointers.
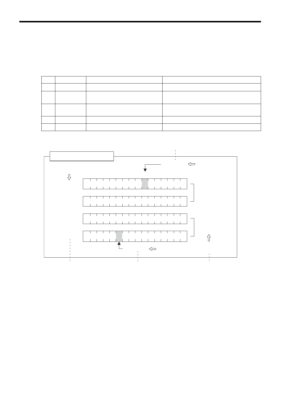
0123456789ABCDEF
[ MW00101 ]
[ MW00102 ]
[ MW00103 ]
[ MW00100 ]
[ MB001006 ]
[ MF00102 ]
[ ML00102 ]
[ MF00100 ]
[ ML00100 ]
[ MB00103A ]
Data Types and Register
Specifications
A digit to indicate the bit (A) is added to
the register number (00103).
The words for the given register number
(00102) and the next number (00103) are
included. Therefore, every second number
is used.
Bit type
Bit type
Double-length and real
number type
Integer type
Each register number
is one word.
A digit to indicate the bit (6) is added to
the register number (00100).

Table of Contents

Related product manuals