EasyManua.ls Logo

YASKAWA MP2300 - System Configuration

YASKAWA MP2300
267 pages
Print Icon
To Next Page IconTo Next Page
To Next Page IconTo Next Page
To Previous Page IconTo Previous Page
To Previous Page IconTo Previous Page
Loading...
4.1
Model System Startup Procedure
4-3
4
System Startup and Sample Programs
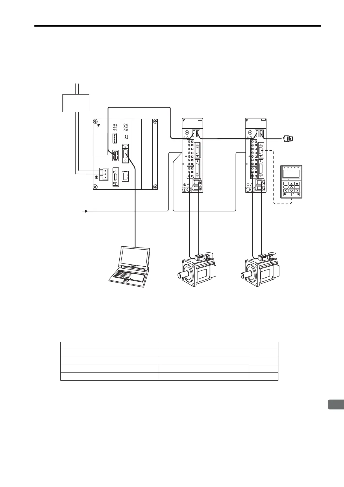
4.1.2 System Configuration
This section describes the system configuration shown in the following diagram. Prepare each devices and connect as
diagram.
For details on equipment for the controller, programming device, servodrive, and the power supply, refer to the following
descriptions.
( 1 ) Controller-related Equipment
For mounting the 218IF-01 Module to the MP2300, refer to 3.1.3 Replacing and Adding Optional Modules on page
3-6.
MPE720 installed personal computer
(see (2).)
SERVOPACK (see (3).)
YASKAWA SERVOPACK
200V
SGDS-01A12A
SW1
CHARGE
C
N
3
A/B
C
N
1
C
N
2
C
N
4
L1
L2
L2C
L1C
B1/
B2
U
V
W
C
N
6
SERVOPACK (see (3).)
YASKAWA SERVOPACK
200V
SGDS-01A12A
SW1
CHARGE
C
N
3
A/B
C
N
1
C
N
2
C
N
4
L1
L2
L2C
L1C
B1/
B2
U
V
W
C
N
6
MECHATROLINK cable (see (1).)
Servomotor
(see (3).)
Servomotor
(see (3).)
24 VDC
power
(see (4).)
Terminator
(see (1).)
200 VAC
DC24V
DC 0V
MP2300
YASKAWA
TEST
ޓ
ޓ
ޓ
Option
Option
RDY
ALM
TX
RUN
ERR
BAT
MON
CNFG
INT
SUP
STOP
SW1
OFF ON
BATTERY
CPU I/O
M-I/II
218IF-01
ERR
COL
RX
RUN
STRX
TX
INIT
TEST
ONOFF
PORT
10Base-T
Controller (see (1).)
Motor cable
(see (3).)
Encoder cable
(see (3).)
SVON TGON
YASKAWA
MODE/SET
DATA
SCROLL
SERVO
DIGITAL OPERATOR JUSP-OP05A
READ WRITE
SERVO
ALARM
RESET
JOG
SVON
CHARGE
REF
COIN
VCMP
Digital
operator
(see (3).)
MECHATROLINK
cable (see (1).)
PP cable
(see (2).)
*Connect when setting
parameters.
Name Model Quantity
MP2300
JEPMC-MP2300
1
218IF-01
JAPMC-CM2300
1
MECHATOROLINK Cables (1 m)
JEPMC-W6002-01
2
Te r m ina t or
JEPMC-W6022
1

Table of Contents

Related product manuals